Ikerház Eladó Kerepes - Panoráma lakópark

Eladó Kerepes Ikerház
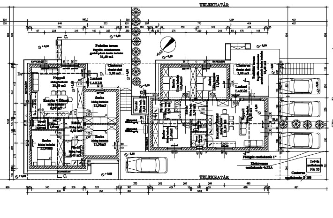
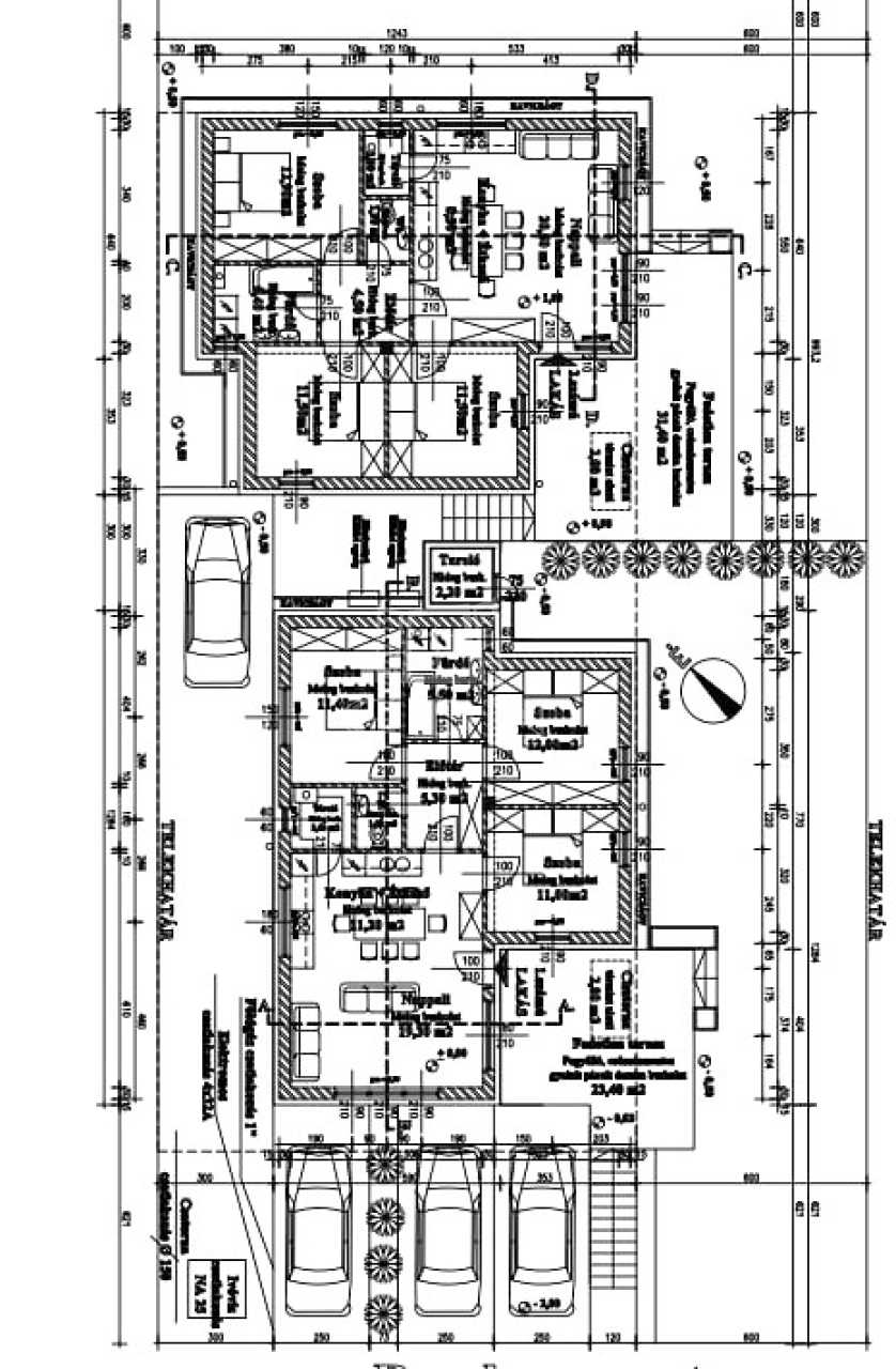
80 m2Alapterület 4 + 1 Szoba
87 000 000 Ft Ár
Hitelkalkuláció folyamatban... Loading
392881Azonosító
További adatok

350 m2 Telek

Panoráma Kilátás

Építés alatt Állapot

Tégla Szerkezet

31 m2 Erkély/terasz

Gáz (cirkó) Fűtés

Komfort Komfort

Saját beálló Parkolás

Emelet Földszint

Legfelső emelet

Nincs Lift

Tömegközlekedés

Amerikai konyhás

Van Kertkapcsolat

Tetőtéri ingatlan

2025 Építés éve

Délnyugati Tájolás

Örökpanoráma. Saját kert. Új otthon.

Kerepesen, a Panoráma lakóparkban eladó egy 80 m²-es ikerházfél 31 m² terasszal és 350 m² saját kerttel, kulcsrakész állapotban – most bevezető áron: 87 millió Ft-ért. Az ingatlan a helyi moratórium miatt 2027 tavaszáig nem kap csatornázási csatlakozási lehetóséget. Megoldást adhat fúrt kút és szikkasztó használata, ezzel a hitelre is képes lehet. Az ikerházfél akár egyben is megvásárolható a másik féllel!

A ház örökpanorámás, csendes zöldövezetben található, mégis csak 15 perc autóval a belvárostól. A közcsatornázás 2027 eleji moratórium feloldásig fúrt kúttal és szikkasztóval megoldott, így a mindennapi használat biztosított. A képek látványtervek, az építkezés folytatása az új tulajdonos bevonásával történik.

– Hőszigetelt falak és nyílászárók → alacsony fűtési költség
– Padlófűtés → modern kényelem
– Klímacsövezés előkészítve → bármikor beszerelhető
– Teljes gépészet → gyors beköltözés
– Minőségi burkolatok és belső ajtók → elegáns alapok
– Öntözőrendszer előkészítve → könnyű kertépítés

Ritka lehetőség: modern otthon panorámával és kerttel, most bevezető áron elérhető. Ez az ikerház fél nem csupán egy otthon, hanem önálló életstílus és biztos befektetés: örökpanoráma, kertkapcsolat, Akár államilag támogatott finanszírozás.
Gergicsné B. Enikő

Gergicsné B. Enikő

Hívjon bizalommal

+36-30-941-Mutasd!

További hirdetéseim

Ingatlaniroda
GDN Ingatlanhálózat - SZIGET
+36 24 656 320