Lakás (téglaépítésű) Eladó Szombathely - Prémium lakások

Eladó Szombathely Lakás (téglaépítésű)
81 m2Alapterület 4 Szoba
83 847 000 Ft Ár
Hitelkalkuláció folyamatban... Loading
358262Azonosító
További adatok

Utcai Kilátás

Új Állapot

Tégla Szerkezet

14 m2 Erkély/terasz

Hőszivattyú Fűtés

Összkomfort Komfort

Saját beálló Parkolás

Emelet 1

Nincs Lift

Tömegközlekedés

Amerikai konyhás

Nincs Kertkapcsolat

2023 Építés éve

Keleti Tájolás

KÖLTŐK UTCÁJA, POÉTA- HÁZ

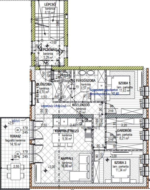
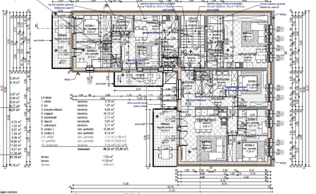
Szombathely belvárosában, a " költők utcái " városrészen csendes, átmenő forgalomtól mentes utcában hat lakásos társasházban, prémium kategóriás lakások, közös kertkapcsolattal eladók. Az ingatlanban mindenki számára alkalmas lakások épülnek. Egy szobástól - négy szobásig, 34 m2 - 86 m2 között. Különlegessége, hogy az első emeleti egyik lakása belső kétszintes. Az ingatlan magas műszaki tartalommal készül. A lakásokat elválasztó falazat hanggátló téglából épül. Homlokzatára 15 cm vastag EPS szigetelés kerül, dryvit vakolattal. Műanyag, fokozottan hang-és hőszigetelt nyílászárói kívül barna, belül fehér színű tokszerkezettel 3 rétegű üvegezéssel készül, redőnyökkel felszerelve. A tetőtérben Fakro ablakokra tervezett, hővédő árnyékolókkal. A fűtés, meleg vízellátás a mai kor követelményeinek leginkább megfelelő házközponti LG hőszivattyús fűtésrendszer kerül kialakításra, H tarifával, minden helyiségben padlófűtéses hőleadással. Napi és heti programozású digitális termosztátokkal. A fürdőszobákban a padlófűtés mellett, törölköző szárítós radiátorok lesznek kialakítva. A lakások nappalijában hűtő-fűtő klíma kerül. Villanyhálózata 3 x 16 Amper teljesítményű. Választható hideg-meleg burkolatok, szaniterek, csaptelepek, beltéri ajtók. Zárt, parkosított udvarában felszíni parkolók, fedett gépkocsibeállók vásárolhatók. Az ingatlan klasszikus, igényes külső megjelenése belvároshoz méltó. A hirdetésben szereplő lakás L3-as, 81.18 m2, +14.16 m2 terasz. Első emeleti, 4 szobás lakás, kertre néző terasszal.
Amerikai konyhás nappali, 3 hálószoba, közlekedő, tágas fürdőszoba, külön wc került kialakításra.
Családi Otthonteremtési kedvezmény plusz hitel igényelhető. CSOK vásárlás esetén 5% áfa visszaigényelhető és teljes illeték mentesség.
Hitel ügyintézésben is segítünk.
Várható átadás: 2024. július 31.
Csík Zsolt

Csík Zsolt

Hívjon bizalommal

+36-30-641-Mutasd!

További hirdetéseim

Ingatlaniroda
GDN Ingatlanhálózat - SZIGET
+36 24 656 320