Lakás (téglaépítésű) Eladó Zamárdi - Balatonhoz közel

Eladó Zamárdi Lakás (téglaépítésű)
87 m2Alapterület 3 Szoba
122 670 000 Ft Ár
Hitelkalkuláció folyamatban... Loading
386485Azonosító
További adatok

Udvari Kilátás

Új Állapot

Tégla Szerkezet

10 m2 Erkély/terasz

Hőszivattyú Fűtés

Összkomfort Komfort

Saját beálló Parkolás

Emelet 1

Van Lift

Tömegközlekedés

Amerikai konyhás

Van Kertkapcsolat

2025 Építés éve

Prémium lakásokat kínálunk megvételre Zamárdi szívében, a Balaton partjától mindössze 100 m távolságra.

A lakások terasszal, kertkapcsolattal, napozó terasszal, autó beállóval + autótöltési lehetőséggel, tárolóval épülnek.
A házban 8 személyes felvonó működik, az épület akadálymentesített.
Az udvar parkosított.
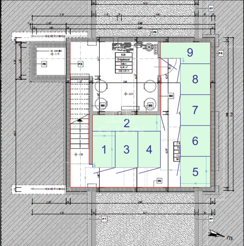
Az ingatlanban 9 db lakás épül.

Emeleti lakások beosztása és vételára:
4. 5. 7. 8.-as lakások:

Lakások nettó alapterülete: 66,71 nm
+ Terasz 10,3 nm
+ Tároló 3,24 nm,
+ Napozó terasz 10,32 nm,
+ Autó beálló 16,6 nm,
--------------------------------
Összesen: 122.670.000.-Ft

Az ingatlan ideális választás mindazok számára, akik modern, energiatakarékos otthont, illetve hosszú távon is értékálló befektetést keresnek a Balaton közvetlen közelében.

Főbb jellemzők:
• Letisztult, modern megjelenés, magas színvonalú kivitelezés
• A+++ energiaosztály – szinte " 0 " rezsiköltség, fenntartható működés
• Már csak 6 apartman, különböző méretekben, átgondolt alaprajzokkal

Műszaki tartalom:
- vasbeton tartószerkezet, külső falak 25 cm ,SILKA tégla+ 30 cm Multipor szigetelés,
- 3 rétegű fehér nyílászáró + elektromos alumínium redőny+
szúnyogháló ( távolról vezérelhető),
- több ponton záródó bejárati ajtók + elegáns kilincs garnitúra,
- minden lakás saját főmérővel rendelkezik 1x 32 A kapacitással,
- TV+ LAN csatlakozó, riasztó előkészítés,
- Napelemekkel működő hőszivattyú rendszere biztosítja a hűtést-fűtést
( fan-coil), melegvíz ellátást, közös területek, felvonó áramellátását,
elektromos autó töltést,
- egyedi hőmennyiségmérők + programozható szobatermosztátok,
- fürdőszobákban + elektromos padlófűtés,
- a lakások előkészítve vannak okosotthon rendszerek teljes skálájára,
- elektromos nagykapu,
- öntöző berendezés,

Birtokba adás: 2 hónap

Irodánk 30 éves szakmai tapasztalattal áll ügyfelei rendelkezésére!

Várom szíves megkeresését!
Csík Zsolt

Csík Zsolt

Hívjon bizalommal

+36-30-641-Mutasd!

További hirdetéseim

Ingatlaniroda
GDN Ingatlanhálózat - SZIGET
+36 24 656 320