Családi ház Eladó Szeged - Béketelep kedvelt részén

Eladó Szeged Családi ház
100 m2Alapterület 3 Szoba
139 000 000 Ft Ár
Hitelkalkuláció folyamatban... Loading
394611Azonosító
További adatok

658 m2 Telek

Utcai Kilátás

Felújított Állapot

Tégla Szerkezet

10 m2 Erkély/terasz

Gáz (cirkó) Fűtés

Összkomfort Komfort

Saját garázs Parkolás

Kiváló Tömegközlekedés

Nem Amerikai konyhás

Van Kertkapcsolat

1987 Építés éve

IDE CSAK KÖLTÖZNI KELL!!

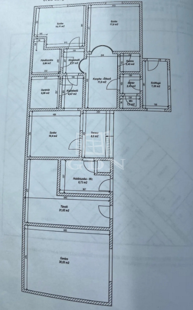
Béketelep kedvelt részén eladó ez a '80-as évek végén épült, de 2024-ben teljes körűen felújított családi ház 658 m2-es telken.

A főépület 100 m2, nappali + 2 hálószobás, nagy gardrob szobával, különleges hangulatú, modern fürdőszobával, gépesített praktikus konyhával és a szülői hálóból nyíló hangulatos terasszal.

A 2 éve megtörtént felújítás mind műszaki, mind esztétikai megújulást jelentett, aminek során napelem is került az épületre, 3 rétegű üvegek kerültek az ablakokba és a homlokzatra 10 cm, a födémre 24 cm szigetelés került, így a ház rezsije nagyon alacsony.
A melléképületben található egy fűtött szoba wc-vel, egy tároló illetve egy 60 m2-es garázs.

Az udvar szépen parkosított, különleges növényekkel díszített, az öntözéshez fúrt kút áll rendelkezésre.

Az ingatlan teljes berendezéssel eladó, ami a vételárban benne van.

A tehermentes ingatlan rövid határidővel költözhető.

NÉZZE MEG AJÁNLATUNKAT SZEMÉLYESEN IS!
Apolzan Magdalena

Apolzan Magdalena

Hívjon bizalommal

+36-70-908-Mutasd!

További hirdetéseim

Ingatlaniroda
GDN Ingatlanhálózat - SZIGET
+36 24 656 320