Családi ház Eladó Pétfürdő - Diófa utca

Eladó Pétfürdő Családi ház
170 m2Alapterület 5 Szoba
79 990 000 Ft Ár
Hitelkalkuláció folyamatban... Loading
382974Azonosító
További adatok

720 m2 Telek

Kertre néző Kilátás

Jó állapotú Állapot

Tégla Szerkezet

Gáz (cirkó) Fűtés

Összkomfort Komfort

Saját garázs Parkolás

Tömegközlekedés

Nem Amerikai konyhás

Van Kertkapcsolat

1996 Építés éve

Pétfürdőn eladásra kínálunk egy csendes, zöldövezeti részen lévő 170 m2-es eltolt szintekkel megoldott családi házat 720 m2-es telekkel a GDN Ingatlanhálózat kínálatából.

Tulajdonságok:
- Ha csendes környezetre, madárcsicsergésre, erdőszéli hangulatra vágyik; de fontos, hogy Veszprém, Várpalota, vagy Székesfehérvár városok illetve a Balaton is közel legyen, akkor jó helyen jár. Ingázóknak tökéletes választás ez az ingatlan.

- Víz, villany, gáz, csatorna a házba bekötésre került.
- Az épület cserépfedésű tetővel, ytong tégla falazattal és vasbeton födémmel készült, a nyílászárók fa és műanyag szerkezetűek, redőnnyel felszerelt.
- Fűtése gáz cirkó, illetve vegyestüzelésű kazánnal megoldott.
- A füvesített hátsó kertben díszcserjék találhatóak, az előkertben locsoló víz is rendelkezésre áll.
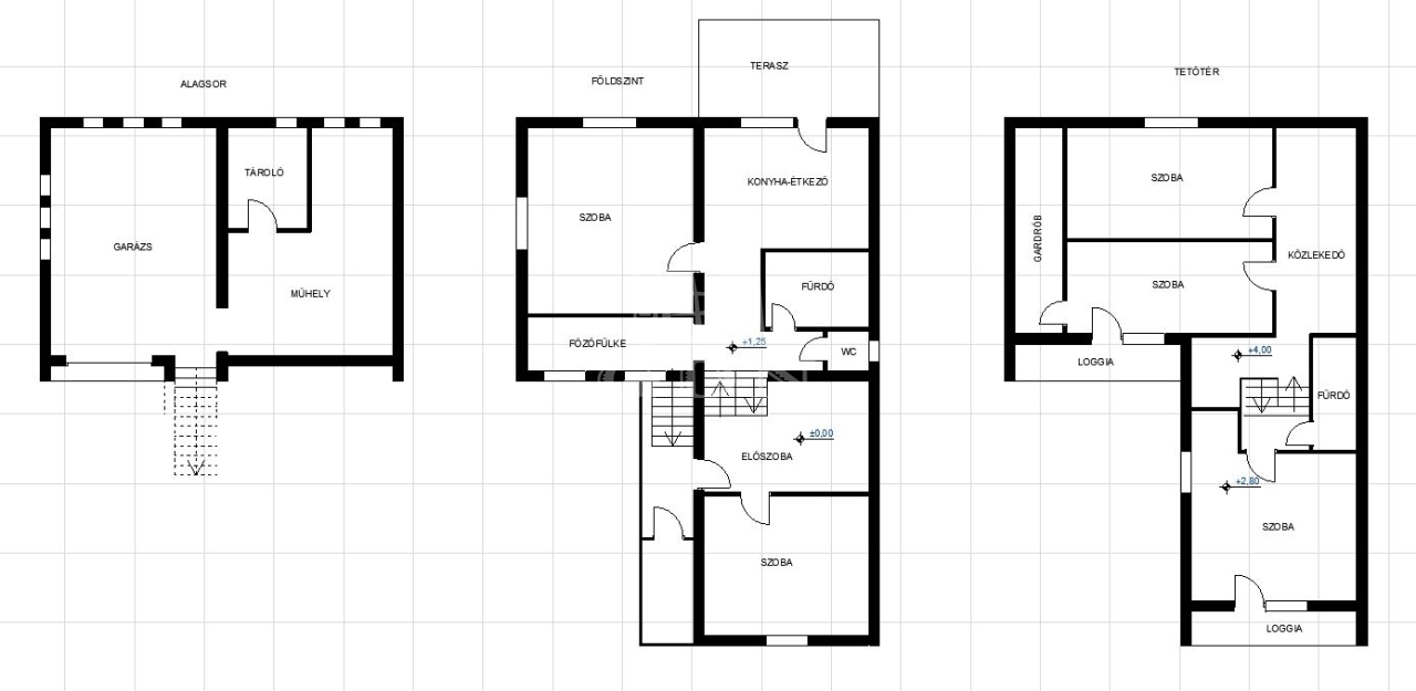
- Az igen nagy és tulajdonképpen 3 szinten kialakított  ház azonnal beköltözhető, kényelmes, tágas hátsó fedett teraszán élvezheti a pihenést!
- Az alsó szinten üvegbejáratú teraszról a garázsba és az alsószint előszobájába lépünk. Innen nyílik egy nagyobb méretű szoba, valamint a lépcsőfeljáró. A lépcsőfeljárón keresztül jutunk el a következő szint főzőfülkéjéhez, amely akár szoba kialakítására is alkalmas lehet, még egy nagyobb szobát találunk itt, a konyhát, a fürdőszobát, WC-t, valamint a kertkapcsolatos teraszt.

- Erről a szintről tovább, lépcsőkön keresztül a következő szintre jutunk, ahol 1 hálószoba várja új lakóit és a fürdőszoba.
A tetőtérben tágas plusz két szoba található és egy irodának kialakított sarok. Igény szerint a házban több ponton beépített gardrób kialakítása valósult meg.
- Az alsó szinten pedig egy jókora garázs, mellette műhely kialakítása valósult meg. Ez a két helyiség akár külön lakrésznek, akár apartmannak, vagy tárolónak, műhelynek, irodának is kialakítható, új funkciója a fantáziára van bízva.
- A városközponthoz közel található, közeli látványosság a csónakázó tó, valamint egy közeli halastó.

Ajánljuk az ingatlant azoknak, akik Pétfürdőn szeretnének letelepedni; csendes, nyugodt környezetre vágynak, de mégis közel szeretnének lenni a közeli városokhoz; valamint azoknak is, akik a hangos nyüzsgéstől mentesen szeretnék szabadidejüket tölteni, madárcsicsergésre ébredni.

 Ne hagyja ki ezt a remek lehetőséget!

Amennyiben a veszprémi GDN Ingatlaniroda által kínált pétfürdői családi ház, vagy bármely, a kínálatunkban található ingatlan felkeltette érdeklődését, forduljon hozzám bizalommal!

Ingatlanirodánk díjmentes, banksemleges hitelügyintézéssel, illetve ügyvédi tanácsadással is áll Ügyfeleink rendelkezésére!
Csík Zsolt

Csík Zsolt

Hívjon bizalommal

+36-30-641-Mutasd!

További hirdetéseim

Ingatlaniroda
GDN Ingatlanhálózat - SZIGET
+36 24 656 320

Visszahívást kérek

Keressen bennünket