Családi ház Eladó Sármellék - Központ

Eladó Sármellék Családi ház
108 m2Alapterület 3 Szoba
199 000 €(~ 72 410 130 Ft)
Hitelkalkuláció folyamatban... Loading
394072Azonosító
További adatok

1522 m2 Telek

Udvari Kilátás

Jó állapotú Állapot

Vályog Szerkezet

Házközponti Fűtés

Saját garázs Parkolás

Közepes Tömegközlekedés

Nem Amerikai konyhás

1980 Építés éve

Sármelléken, csendes, mégis központi elhelyezkedéssel, a Balaton, valamint a híres hévízi és zalakarosi termálfürdők közelében eladó ez a gondozott, felújított családi ház.
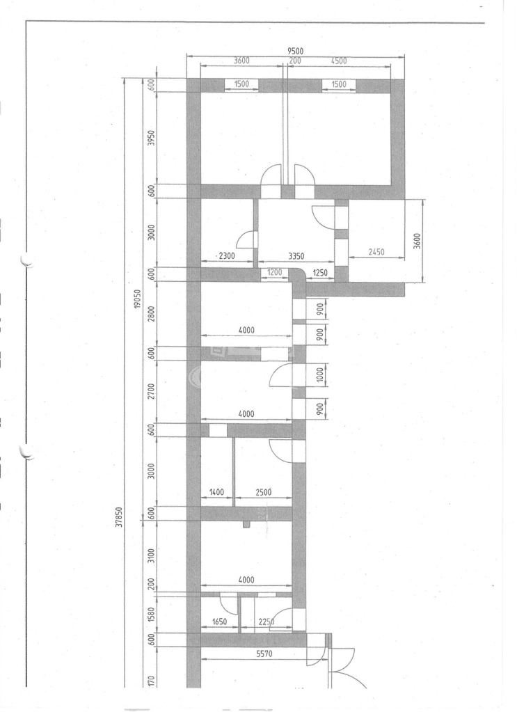
A ház lakóterülete 108 m2, amely egy tágas, 1 522 m2-es telken helyezkedik el. Az épület hagyományos vályog falazattal épült, a falak vastagsága körülbelül 50–60 cm, ami kellemes belső klímát biztosít. A tető cserépfedésű és szigetelt, az ablakok pedig fa szerkezetűek, két rétegű üvegezéssel.
A ház fűtését gázkazán és kandalló biztosítja, emellett klímaberendezések is találhatók az épületben. A fürdőszoba már felújításra került, a nappaliban pedig új padlóburkolat készült. A villany-, víz- és csatornahálózat 2000-ben lett korszerűsítve. 2023–2024-ben felújító vakolat és páraáteresztő festés került az épületre, ami tovább javítja az ingatlan állapotát.
A ház praktikus elrendezésű. Az utcafront felé két nagy szoba található. Emellett egy étkező / nappali, egy teraszkapcsolatos, nyitott konyha, egy kamra, egy tágas fürdőszoba és egy előszoba tartozik az ingatlanhoz.
A lakóépülethez kapcsolódva további hasznos helyiségek is rendelkezésre állnak: egy külön mosó- és nyári konyha, egy vendégapartman saját főzősarokkal és zuhanyzóval, egy egyállásos garázs, valamint egy dupla garázs műhellyel.
A gondosan kialakított telek gyümölcsfákkal, kúttal és ciszternával rendelkezik, így ideális választás kertkedvelők számára. A ház egyik különlegessége a fedett, déli fekvésű terasz, amely az utcáról nem belátható, így nyugodt pihenésre és kikapcsolódásra tökéletes.
Sármellék kiváló elhelyezkedésű település, mindössze néhány percre a Balatontól, a híres hévízi termálfürdőtől és a történelmi Keszthely városától. A közelben bevásárlási lehetőségek, éttermek, orvosi rendelők és gyógyszertárak is megtalálhatók. A településen németül beszélő háziorvos is elérhető, ami különösen előnyös lehet külföldi vásárlók számára. A térség jó infrastruktúrával és közlekedési kapcsolatokkal rendelkezik.
Köő Zsolt

Köő Zsolt

Hívjon bizalommal

+36-20-234-Mutasd!

További hirdetéseim

Ingatlaniroda
GDN Ingatlanhálózat - SZIGET
+36 24 656 320

Visszahívást kérek

Keressen bennünket