Lakás (téglaépítésű) Eladó Siófok - Sóstó

Eladó Siófok Lakás (téglaépítésű)
98 m2Alapterület 5 Szoba
225 000 000 Ft Ár
Hitelkalkuláció folyamatban... Loading
394519Azonosító
További adatok

200 m2 Telek

Panoráma Kilátás

Új Állapot

Tégla Szerkezet

177 m2 Erkély/terasz

Hőszivattyú Fűtés

Összkomfort Komfort

Saját beálló Parkolás

Emelet 1

Legfelső emelet

Nincs Lift

Tömegközlekedés

Amerikai konyhás

Van Kertkapcsolat

2026 Építés éve

Panorámás, új építésű lakás Siófok, Sóstón!

Sóstó nyugodt, csendes részén, a Balatontól, strandtól sétatávolságra kínálunk megvételre egy most épülő, kétlakásos lakóingatlant.

Az építkezést most kezdték meg, így önnek még van lehetősége a belső tereket a saját izlése szerint kialakíttatni, kiválasztani a burkolatokat, beltéri ajtókat, falszíneket.

Ebben a hirdetésben az emeleti panorámás lakást ajánljuk:
nettó alapterülete 98 nm + 57 nm + 120 nm privát tetőterasz + 200 nm saját kertrész.
Ára: 225.000.000.-Ft.

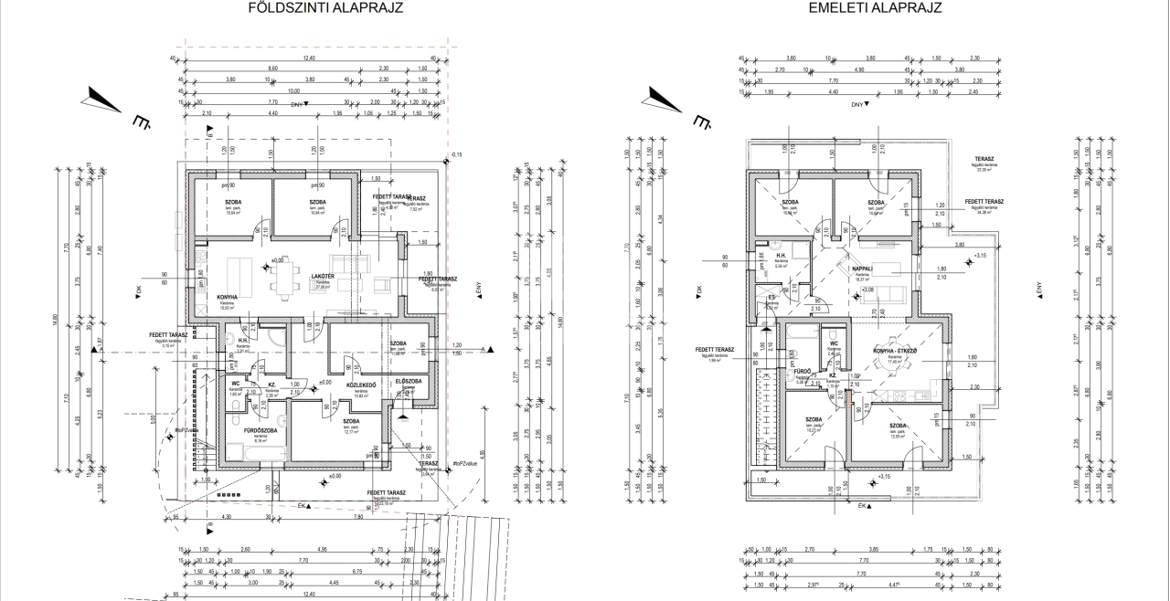
Beosztása:
- előtér 4,32 nm,
- szoba 12,53 nm,
- szoba 10,27 nm,
- szoba 10,64 nm,
- szoba 10,64 nm,
- konyha + étkező 17,45 nm,
- nappali 18,37 nm,
- fürdőszoba 5,38 nm,
- háztartási h. zuhanyzóval+ kézmosóval 5,54 nm,
- WC 2,45 nm,

- Teraszok:
- Fedett terasz 56,68 nm,
- Tetőtéri terasz 120 nm.

Műszaki paraméterek:
- falazat Porotherm N+F 30 tégla,
- vasbeton födém + 25 cm szigetelés,
- 3 rétegű műanyag nyílászárók,
- elektromos alumínium redőny + szúnyogháló,
- külső szigetelés 15 cm polisztirol,
- a tetőterasz hangszigetelt,
- hőszivattyús fűtésrendszer, padlófűtés,
- 5 db hűtő-fűtő klíma,
- hideg burkolatok 9.000.-Ft/nm,
- meleg burkolatok 7.000.-Ft/nm,
- beltéri ajtók 100.000.- Ft/db,
- szaniterek 800.000.-Ft-ig.
- udvarban térkövezett autóbeálló.

Az ingatlan földszinti lakása is elérhető még!
Alapterülete: nettó 115 nm + teraszok 43 nm + saját kertrész 436 nm.
Ára: 185.000.000.-Ft.

Tervezett átadás: 2027. első negyedév.

Az ingatlant, a Nagy Házépítő Kft. kivitelezi, akik Siófokon számos referencia munkával rendelkeznek!

Közlekedés kiváló: Budapesttől alig 1 óra alatt elérhető.

Amivel segítjük az Ön ingatlan vásárlását:
- ingyenes hitelügyintézés (CSOK és Babaváró és egyéb hitel
ügyintézése is)
- jogi háttér,
- földhivatali ügyintézés,
- energetikai tanúsítvány ügyintézése,
- a vevő számára ingyenes az ingatlanközvetítés.
Irodánk 30 éves tapasztalattal áll ügyfelei rendelkezésére!

Várom szíves megkeresését!
Apolzan Magdalena

Apolzan Magdalena

Hívjon bizalommal

+36-70-908-Mutasd!

További hirdetéseim

Ingatlaniroda
GDN Ingatlanhálózat - SZIGET
+36 24 656 320