Garázs Eladó Szeged - Apáca utca

Eladó Szeged Garázs
15 m2Alapterület 2 Szoba
13 970 000 Ft Ár
394136Azonosító
További adatok

Utcai Kilátás

Új Állapot

Tégla Szerkezet

Hőszivattyú Fűtés

Összkomfort Komfort

Garázs/beálló vásárolható Parkolás

Emelet 3

Legfelső emelet

Nincs Lift

Kiváló Tömegközlekedés

Amerikai konyhás

Nincs Kertkapcsolat

Tetőtéri ingatlan

2026 Építés éve

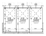
Udvari garázsok eladók Szeged belvárosában – Apáca utca

Szeged belvárosában, az Apáca utcában, új építésű társasház udvarában kínálunk megvételre önálló garázsokat, amelyek kiváló lehetőséget jelentenek saját használatra vagy befektetési célra.

A belvárosban a parkolás egyre nagyobb kihívás, ezért a garázsok iránt folyamatos és stabil kereslet tapasztalható.

Főbb jellemzők
- udvari elhelyezkedés
- külön helyrajzi egységként kialakítva
- aljzatbetonozott kivitel
- vakolt falak
- villanykiállás (kapcsoló, dugalj, lámpahely)
- billenő garázskapu

Átadás ütemezése
- 2026 év vége: emelt szerkezetkész állapot
- 2027 év eleje: kulcsrakész átadás

Miért jó befektetés?

- belvárosban korlátozott garázskínálat
- folyamatos bérlői kereslet
- alacsony fenntartási költség
- gyorsan kiadható
- hosszú távon értéknövekedés várható

Kinek ajánljuk?

- környéken lakóknak (parkolás megoldása)
- lakásvásárlóknak (értéknövelő kiegészítés)
- befektetőknek (könnyen bérbe adható)

Lokáció

- belvárosi elhelyezkedés
- zárt, udvari környezet
- biztonságos parkolás

A belvárosi garázsok egyre ritkábbak, ezért stabil, alacsony kockázatú befektetésnek számítanak, amelyek könnyen hasznosíthatók bérbeadással.

További információért keressen bizalommal!
Kémeri-Szekernyés Tímea

Kémeri-Szekernyés Tímea

Hívjon bizalommal

+36-30-248-Mutasd!

További hirdetéseim

Ingatlaniroda
GDN Ingatlanhálózat - SZIGET
+36 24 656 320

Visszahívást kérek

Hasonló ingatlanok

Keressen bennünket