Fejlesztési terület Eladó Székesfehérvár - Balatoni út

Eladó Székesfehérvár Fejlesztési terület
3 000 m2Alapterület 0 Szoba
19 000 Ft Ár
359124Azonosító
További adatok

Közepes Tömegközlekedés

English text follows

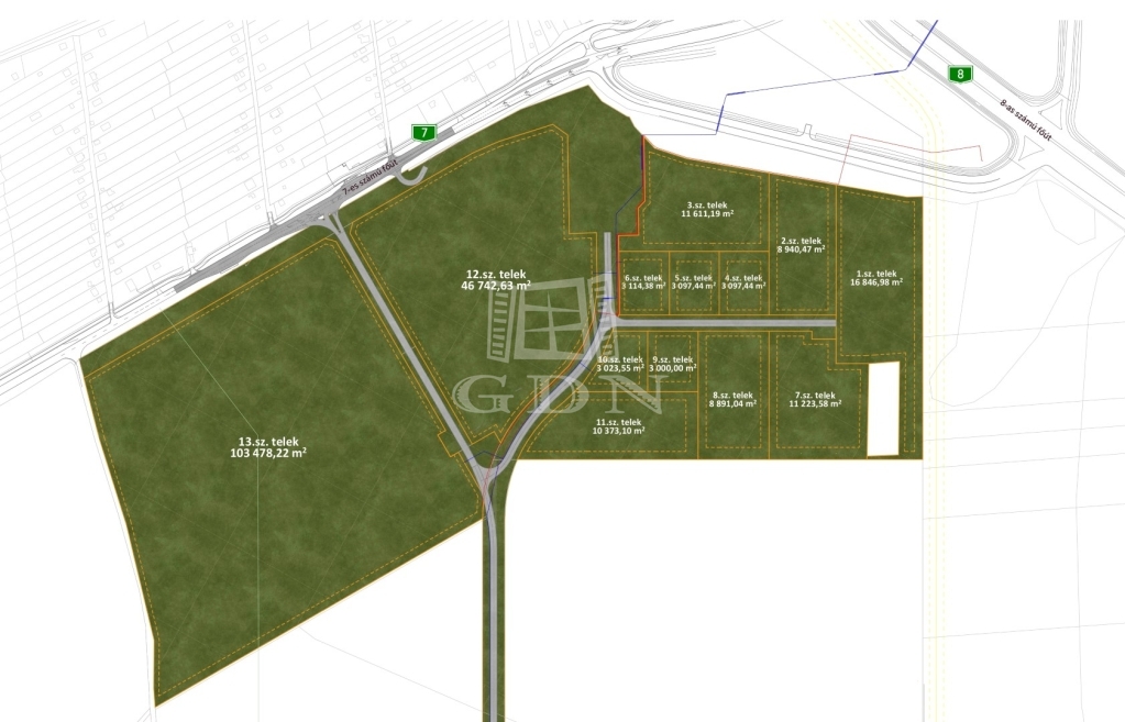
T-003944. Székesfehérvár délnyugati határában, a 7-es és a 8a-s számú főút találkozásánál, 5km-re a városközponttól és mindössze 4km-re az M7-es autópályától új parcellázási közművesített ipari fejlesztési telkek eladók!
A telkek teljes közművel és infrastruktúrával (víz, villany csatorna, szilárd burkolatú belső úthálózat) kerülnek értékesítésre!

Elérhető telekméretek: 3000m2 – 600.000m2-ig

A beépítésre vonatkozó fontosabb határértékek:
Övezeti besorolás: GKSZ1, GKSZ3
‣ max. beépíthetőség: 60%
‣ min. zöldfelület: 20%
‣ építménymagasság: 16m / 20m

Eladási irányár: 19.000 Ft/m2 +ÁFA
(telekmérettől függően minden esetben egyedi ajánlat készül)


Ha felkeltette érdeklődését, hívja irodánkat bizalommal, éljen ingyenes, személyre szabott hitelügyintézés szolgáltatásunkkal. Segítünk továbbá adásvételhez szükséges ügyvédi közreműködésben, energetikai tanúsítvány, valamint értékbecslés elkészítésében.

For English details please send us a message or an e-mail, thank you.

─ ─ ─ ─ ─ ─

Industrial / logistic development plots for sale in various sizes located in the southwest part of Szekesfehervar at the intersection of main road No. 8. and 7 with direct connection (4km) to M7 highway.

General features:
Plot size: 3000sqm up to 600.000sqm
Zoning: GKSZ1, GKSZ3 (industrial, logistic)
‣ max. built-in ratio: 60%
‣ min. green area: 20%
‣ max. building height: 16m / 20m

Pricing: HUF 19.000 +VAT /sqm
(depending on the plot size, a tailormade offer is presented in each case)
Apolzan Magdalena

Apolzan Magdalena

Hívjon bizalommal

+36-70-908-Mutasd!

További hirdetéseim

Ingatlaniroda
GDN Ingatlanhálózat - SZIGET
+36 24 656 320

Visszahívást kérek

Keressen bennünket