Iroda Kiadó Székesfehérvár - Történelmi Belváros

Kiadó Székesfehérvár Iroda
120 m2Alapterület 0 Szoba
420 000 Ft /Hó Ár
393860Azonosító
További adatok

Utcai Kilátás

Jó állapotú Állapot

Tégla Szerkezet

Egyéb Fűtés

Utcán, közterületen Parkolás

Emelet Földszint

Nincs Lift

Kiváló Tömegközlekedés

2010 Építés éve

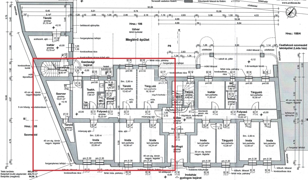
Bip-002539. Történelmi belvárosban, frekventált helyen, irodaház földszintjén, teljesen elszeparált, 120 nm-es irodaegység kiadó! Az igényes, kétszintes épület felújított. A bérbeadó irodákhoz külön mosdó, WC, valamint teakonyha biztosított. Parkolás az épület előtti közterületi parkolóban lehetséges.

Jellemzők:
‣ központi elhelyezkedés
‣ jól megközelíthető
‣ fűtés gázkazán + radiátor
‣ riasztó
‣ rezsi elszámolás mért fogyasztás alapján
‣ fizetős de könnyű parkolás közvetlenül az ingatlan előtt
‣ ráccsal védett bejárat
‣ bútorozott
‣ külön mosdó, WC, valamint teakonyha biztosított az irodákhoz

Bérleti díj: 420.000,- Ft+ÁFA +70eFt rezsi/hó +2 hó kaució

Ha felkeltette érdeklődését, hívja irodánkat bizalommal, éljen ingyenes, személyre szabott hitelügyintézés szolgáltatásunkkal. Segítünk továbbá adásvételhez szükséges ügyvédi közreműködésben, energetikai tanúsítvány, valamint értékbecslés elkészítésében.
Apolzan Magdalena

Apolzan Magdalena

Hívjon bizalommal

+36-70-908-Mutasd!

További hirdetéseim

Ingatlaniroda
GDN Ingatlanhálózat - SZIGET
+36 24 656 320