Üzlethelyiség Kiadó Székesfehérvár - Főútvonal közelében

Kiadó Székesfehérvár Üzlethelyiség
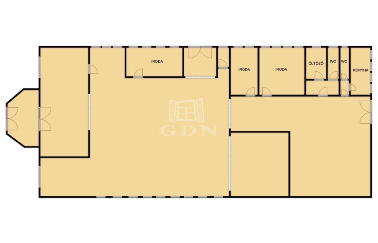
500 m2Alapterület 0 Szoba
950 000 Ft /Hó Ár
394283Azonosító
További adatok

Utcai Kilátás

Jó állapotú Állapot

Tégla Szerkezet

Gáz (cirkó) Fűtés

Saját garázs Parkolás

Tömegközlekedés

1985 Építés éve

Bip-002127. Raktár utcában 500m2 alapterületű, nagykirakatos, utcafronti kereskedelmi telephely kiadó!

Jellemzők:
‣ ~1000m2 körbekerített, sajáthasználatú udvar
‣ tehergépkocsival is könnyen és korlátozások nélkül megközelíthető
‣ rakodásra alkalmas oldalsó ajtó méretei: 2,9m x 2,6m
‣ udvarban további raktározási lehetőségek (2x25m2)
‣ fűtése gázkazán-radiátor és/vagy hűtő-fűtő klímákkal
‣ áramkapacitás: 3x20A

Az épület szigetelése jó, üzemeltetése energiatakarékos, belső falai könnyűszerkezetűek, igény szerint alakíthatók.
Egyaránt kiválóan alkalmas üzletnek, műhelynek vagy sport tevékenységre.

Bérleti díj: 950.000,- Ft +ÁFA/hó + rezsi + 2 hó kaució



Ha felkeltette érdeklődését, hívja irodánkat bizalommal, éljen ingyenes, személyre szabott hitelügyintézés szolgáltatásunkkal. Segítünk továbbá adásvételhez szükséges ügyvédi közreműködésben, energetikai tanúsítvány, valamint értékbecslés elkészítésében.
Apolzan Magdalena

Apolzan Magdalena

Hívjon bizalommal

+36-70-908-Mutasd!

További hirdetéseim

Ingatlaniroda
GDN Ingatlanhálózat - SZIGET
+36 24 656 320