Családi ház Eladó Taksony - Taksony központ

Eladó Taksony Családi ház
504 m2Alapterület 9 Szoba
290 666 000 Ft Ár
Hitelkalkuláció folyamatban... Loading
393598Azonosító
További adatok

686 m2 Telek

Utcai Kilátás

Jó állapotú Állapot

Tégla Szerkezet

Gáz (cirkó) Fűtés

Dupla komfort Komfort

Saját garázs Parkolás

Tömegközlekedés

Amerikai konyhás

Van Kertkapcsolat

1993 Építés éve

Délnyugati Tájolás

Üzlethelyiségek + lakások + vendéglátó tér!

Taksonyban 504 m²-es bevételt termelő ingatlan!

Taksony frekventált részén eladó egy 504 m²-es, többfunkciós ingatlan, amely kiváló befektetési lehetőséget kínál. Az épület kialakítása lehetővé teszi lakások, üzlethelyiségek és vendéglátó egység egyidejű hasznosítását, így az ingatlan több forrásból is azonnali bevételt termelhet.

Főbb jellemzők:

-504 m² bruttó alapterület,
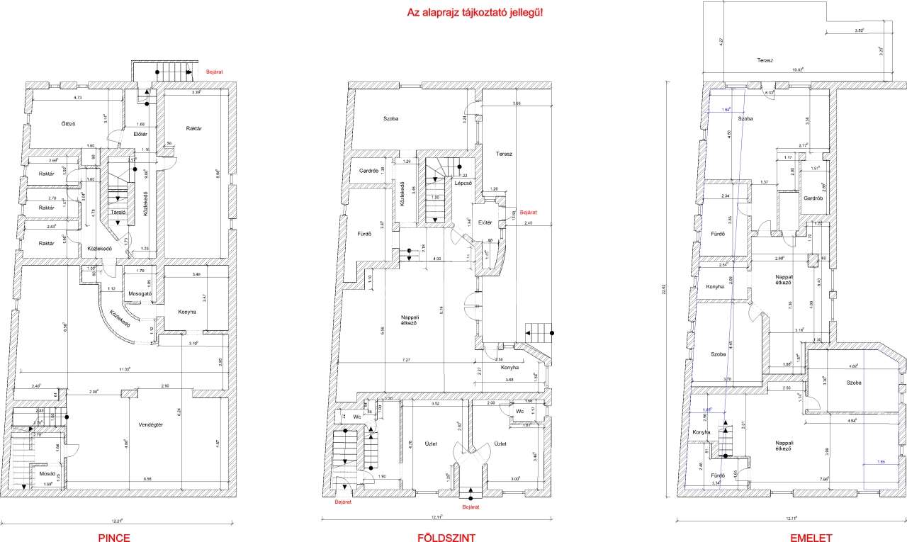
-pince + földszint + tetőtér,
-2 utcafronti üzlethelyiség,
-több lakássá alakítható lakóterület,
-vendéglátásra kialakított pince,
-2 beállásos garázs az udvarban,
-befektetésre ideális kialakítás.

Lakóterület:

Az épület egyik meghatározó része egy nagy alapterületű, két szinten elhelyezkedő lakrész, amely kényelmes lakhatást biztosít, ugyanakkor befektetési szempontból is jól alakítható.

Földszint: 151,6 nm2 (Lakás:110,4 nm2, utcafronti üzletek összesen:41,2 nm2)+ terasz:45,85 nm2.
-tágas amerikaikonyhás nappali étkezővel,
-hálószoba,
-gardrób,
-fürdőszoba.

Tetőtér: Lakás: bruttó 95,04 nm2, nettó 67,27 nm2,+ erkékly: 39,04 nm2.
-világos nappali,
-2 hálószoba,
-fürdőszoba,
-teakonyha,
-erkéy.

A jelenlegi elrendezés lehetőséget ad arra, hogy a két szintből két különálló lakás kerüljön kialakításra, ami bérbeadás esetén külön bevételi egységeket jelenthet.

A lakótér mérete és kialakítása miatt az ingatlan alkalmas:
-többgenerációs lakhatásra,
-külön bérbeadható lakások kialakítására,
-tulajdonosi lakás + bérbeadható egységek kombinációjára.

Üzlethelyiségek:
Az utcafrontról 2 külön bejáratú üzlethelyiség nyílik.

Az egyik üzlethelyiséghez a tetőtérben egy teljes értékű lakás tartozik: lakás: bruttó 61,5 nm2, nettó 40,22 nm2).
-nappali,
-hálószoba,
-fürdőszoba,
-teakonyha.

Ez a kialakítás ideális üzlet + lakás kombinációként, de külön bérbeadva is jól hasznosítható.

Pince: 196,28 nm2

A pince szint vendéglátó funkcióra lett kialakítva:
-vendégtér,
-bár,
-konyha,
-raktár,
-öltözők,
-2 fürdőszoba előkészítés,

A személyzet számára külön rész:
-2 szoba,
-szobánként saját fürdőszoba és WC.

Lehetséges havi bevétel (becslés)

Az ingatlan több egységre bontva jelentős bérleti bevételt biztosíthat.

Példa kalkuláció:

2 lakás bérbeadása: kb. 180–220 ezer Ft / lakás

tetőtéri lakás az üzlethez: kb. 180–220 ezer Ft

2 utcafronti üzlethelyiség: kb. 200–300 ezer Ft / üzlet

vendéglátó pince bérbeadása: kb. 300–500 ezer Ft

Lehetséges összes havi bevétel: kb. 1 200 000 – 1 700 000 Ft

(A pontos bevétel a hasznosítás módjától függ.)

Befektetési lehetőség

Az ingatlan ideális:
-befektetési ingatlannak,
-bérbeadásra,
-üzlethelyiség üzemeltetésére,
-vendéglátó egység kialakítására,
-többlakásos ingatlan kialakítására,
-telephelynek vagy vállalkozásnak.

A kialakításnak köszönhetően az ingatlan rövid időn belül több lábon álló bevételt termelő befektetéssé alakítható.

Budapest közelsége és Taksony fejlődő infrastruktúrája miatt az ingatlan hosszú távon is stabil befektetés.

A hirdetésben szereplő adatok tájékoztató jellegűek!

Amivel segítjük az Ön ingatlanvásárlását:
- ingyenes hitelügyintézés,
- jogi háttér,
- földhivatali ügyintézés,
- energetikai tanúsítvány,
- a vevő számára az ingatlanközvetítés ingyenes.

Irodánk 30 éves szakmai tapasztalattal áll ügyfelei rendelkezésére!

Várom szíves megkeresését!
Gergicsné Veér Annamária

Gergicsné Veér Annamária

Hívjon bizalommal

+36-20-396-Mutasd!

További hirdetéseim

Ingatlaniroda
GDN Ingatlanhálózat - SZIGET
+36 24 656 320

Visszahívást kérek

Keressen bennünket