Lakás (téglaépítésű) Eladó Taksony - ECOLAND LAKÓPARK

Eladó Taksony Lakás (téglaépítésű)
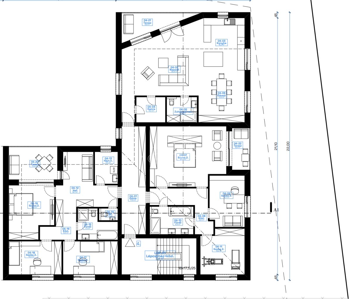
240 m2Alapterület 9 Szoba
240 000 000 Ft Ár
Hitelkalkuláció folyamatban... Loading
394600Azonosító
További adatok

Utcai Kilátás

Új Állapot

Tégla Szerkezet

Hőszivattyú Fűtés

Összkomfort Komfort

Saját beálló Parkolás

Emelet 1

Legfelső emelet

Nincs Lift

Tömegközlekedés

Amerikai konyhás

Nincs Kertkapcsolat

2026 Építés éve

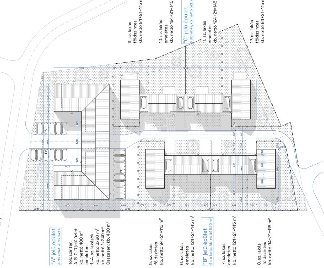
ECOLAND lakópark Taksonyban!

Taksonyban 6265 nm-es területen egy modern 12 lakásos lakópark építése hamarosan megkezdődik, és ezzel együtt elindítjuk az előértékesítést!

KIVÁLÓ BEFEKTETÉSI LEHETŐSÉG!

Az "A" épület emeletének jobb oldalára 1 db 240 nm-es nagyméretű lakás lett tervezve. Igény esetén 3 kisebb, különálló lakássá alakítható. Az építés során a fűtésrendszer, víz és a villany, lakásonként lesz kialakítva. Minden lakás saját mérőórákkal rendelkezik.

Amit kínálunk!
-Tágas, jól alakítható terek,
-Több lakás kialakítására alkalmas elrendezés,
-Prémium kivitelezés,
-Korszerű, energiatakarékos lakások,
-Átgondolt alaprajzok, kényelmes életterek,
-Csendes, nyugodt környezet,
-Kiváló megközelíthetőség,
-Remek befektetési potenciál,
-Bérbeadásra vagy továbbértékesítésre is tökéletes.

Műszaki tartalom:
- falazat Porotherm N+F 30 tégla,
- vasbeton födém + 25 cm szigetelés,
- külső szigetelés 15 cm polisztirol,
- 3 rétegű műanyag nyílászárók,
- elektromos alumínium redőny + szúnyogháló,
- elektromos garázsajtó,
- hőszivattyús fűtésrendszer, padlófűtés,
- lakásonként 4 db Gree hűtő-fűtő klíma,
- hideg burkolatok 7.000.-Ft/nm,
- meleg burkolatok 6.000.-Ft/nm,
- beltéri ajtók 80.000.- Ft/db,
- szaniterek 800.000.-Ft-ig.
- földszinti lakások saját telekrésze lekerítve,
- elektromos autó töltési lehetőség.

Várható átadás: 2027. év vége.
A lakás 20 % önerővel leköthető!

Irodánk 30 éves szakmai tapasztalattal áll ügyfelei rendelkezésére!
Amivel segítjük az Ön ingatlan vásárlását:
- ingyenes hitelügyintézés (CSOK és Babaváró és egyéb hitel ügyintézése is)
- jogi háttér,
- földhivatali ügyintézés,
- energetikai tanúsítvány ügyintézése,
- a vevő számára ingyenes az ingatlanközvetítés.

Várom szíves megkeresését!
Apolzan Magdalena

Apolzan Magdalena

Hívjon bizalommal

+36-70-908-Mutasd!

További hirdetéseim

Ingatlaniroda
GDN Ingatlanhálózat - SZIGET
+36 24 656 320

Visszahívást kérek

Keressen bennünket