Családi ház Eladó Tiszasziget - Kossuth utca

Eladó Tiszasziget Családi ház
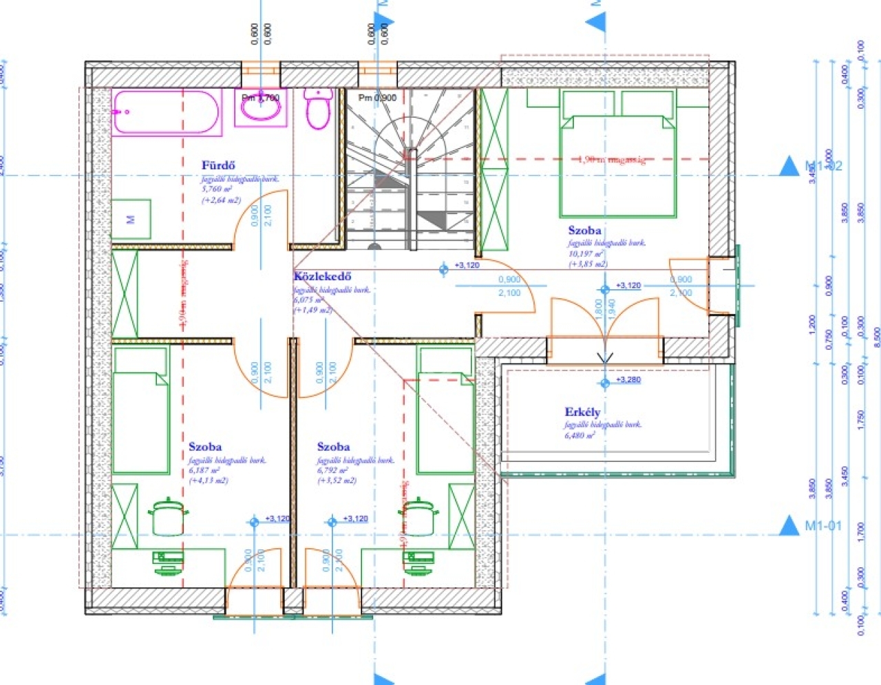
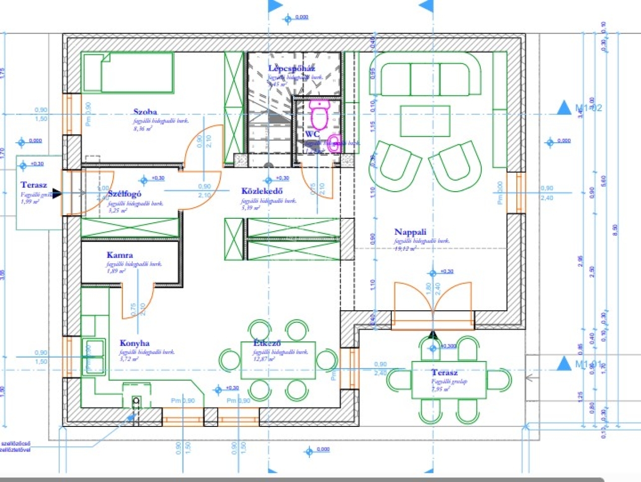
92 m2Alapterület 5 Szoba
86 900 000 Ft Ár
Hitelkalkuláció folyamatban... Loading
393620Azonosító
További adatok

680 m2 Telek

Panoráma Kilátás

Új Állapot

Tégla Szerkezet

20 m2 Erkély/terasz

Hőszivattyú Fűtés

Összkomfort Komfort

Saját beálló Parkolás

Közepes Tömegközlekedés

Amerikai konyhás

Van Kertkapcsolat

2026 Építés éve

ÚJ ÉPÍTÉSŰ,ÖNÁLLÓ TELKEN CSALÁDI HÁZ ELADÓ TISZASZIGETEN – ZÖLD KÖRNYEZET, PRÉMIUM KIVITELEZÉS!

Tiszaszigeten kínálunk eladásra egy exkluzív kivitelezésű, új építésű családi házat a SZIGET LAKÓPARKBAN.

A beruházást nagy szakmai tapasztalattal és kiváló referenciákkal rendelkező kivitelező valósítja meg, kiemelt figyelemmel az energiatakarékosságra, esztétikumra és a minőségi anyaghasználatra.

Főbb jellemzők:

Telek mérete: 680 m2

Nettó alapterület: 92,11 m² + 8 m² terasz

Amerikai konyhás nappali + étkező, 4 hálószoba, fürdőszoba, külön WC, kamra, erkély

Modern, levegő-víz hőszivattyús fűtés, padlófűtéssel

Energiahatékony, 3 rétegű nyílászárók

Egyedi választható burkolatok, szaniterek, beltéri ajtók – teljes mértékben az Ön ízléséhez igazítva!

Hő- és hangszigetelt épület, magas műszaki tartalommal

Zöldövezeti elhelyezkedés, családbarát környezet

Műszaki tartalom kulcsrakész kivitel esetén:

Teljes belső festés, burkolás

Laminált padló, hideg burkolatok egyedi választás szerint

Alföldi porcelán szaniterek, középkategóriás csaptelepek

Programozható termosztát, szabályozható hőmérséklet

Elektromos és vízszerelvények beépítve

Igény esetén redőny és szúnyogháló is rendelhető

Környezet és elhelyezkedés:

A SZIGET LAKÓPARK Tiszasziget új, kedvelt részén helyezkedik el, csendes, zöld környezetben, ideális választás családoknak és nyugalmat keresőknek.

Szeged autóval 10-15 perc alatt elérhető, a település kiváló infrastruktúrával rendelkezik.

Amitől ez az ingatlan különleges:

Modern technológia, alacsony rezsi
Igényes, egyedi belső kialakítás
Megbízható, tapasztalt kivitelező
Természetközeli, családbarát környezet

Érdeklődj most és segítünk kiválasztani az Ön álomotthonát!
Gergicsné B. Enikő

Gergicsné B. Enikő

Hívjon bizalommal

+36-30-941-Mutasd!

További hirdetéseim

Ingatlaniroda
GDN Ingatlanhálózat - SZIGET
+36 24 656 320

Visszahívást kérek

Hasonló ingatlanok

Keressen bennünket