Családi ház Eladó Újfehértó - Bajcsy-Zsilinszky utca

Eladó Újfehértó Családi ház
451 m2Alapterület 3 Szoba
49 000 000 Ft Ár
Hitelkalkuláció folyamatban... Loading
372935Azonosító
További adatok

2323 m2 Telek

Udvari Kilátás

Építés alatt Állapot

Tégla Szerkezet

Egyéb Fűtés

Saját beálló Parkolás

Közepes Tömegközlekedés

Nem Amerikai konyhás

Van Kertkapcsolat

1998 Építés éve

AKCIÓ! 10 MILLIÓ ÁRENGEDMÉNY!

Újfehértó Bajcsy-Zsilinszky utcán egyben eladó 3 nagy épület (összesen 473nm), mely 1 félkész családi házból és 1 ipari üzemből és 1 mezőgazdasági csarnokból áll.

Akciós ár: 49.000.000 Ft (Eredeti ár: 59.000.000 Ft)

Nézze meg videónkat is: https://youtu.be/Zbn7krRkdso

Az ingatlan alap méretei:
- telek méret: 1312+1011=2323nm,
- összes épület teljes alapterülete 473nm, mely a következőkből áll:
1. Lakóház alapja 204nm,
2. Ipari üzem alapja 150nm,
3. Mezőgazdasági csarnok alapja 119nm.

1. Félkész lakóház hasznos alapterülete 146nm melyben található:
- 3 szoba,
- fürdőszoba különálló WC,
- nappali,
- konyha,
- étkező,
- kamra,
- garázs,
- közlekedő
- terasz.

2. Ipari üzem hasznos alapterülete 113nm melyben található:
- baloldali csarnok: 7,3mx5,2m=38,0nm,
- középső csarnok: 7,3mx5,3m=38,7nm,
- jobboldali csarnok: 7,3mx5,0m=36,5nm.

3. Mezőgazdasági csarnok hasznos alapterülete 192nm melyben található:
- földszint nettó alapterülete: 95,6nm,
- pince nettó alapterülete: 96,1nm,


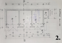
1. Félkész lakóház 1998-ban épült, beton alapzattal, 38-as tégla falazattal. Az épület teljes tervrajza és az építési engedélyek bár már lejártak, de rendelkezésre állnak. A tervrajzból is jól látható, hogy egy tágas, logikus elrendezettségű családi háznak készült.

2. Ipari üzemcsarnok 1998-ban épült, beton alapzattal, 30-as tégla falazattal, mely jelenleg is használatban van. 3 fázisú ipari áram, víz, gáz, csatorna, rendelkezésre áll. Az épület kifejezetten ipari üzemnek készült, nagy bejárati ajtókkal van ellátva, hogy targoncával is be lehessen menni. Az épület állapota jó, szükség szerint könnyen átalakítható. Az épületben iroda, öltöző, zuhanyzó és WC is található.

3. Mezőgazdasági csarnok 1998-ban épült, beton alapzattal, 30-as tégla falazattal. A pince és a földszinti födém is nagy teherbírású vas-beton födém. Az épület kifejezetten mezőgazdasági csarnoknak készült, évekig alma tároló és csomagoló üzemként volt hasznosítva. Az épület nagy beton rámpákkal rendelkezik, hogy a tehergépkocsikról közvetlenül lehessen a rámpákra rakodni. A pince száraz és nyáron is kellemes hűs levegő van benne. Az épület állapota kiváló, könnyen átalakítható, ipari üzemként vagy akár társasházként is hasznosítható.

Az udvarra murvával borított autóbeálló út vezet, mind a 3 épület akár kamionnal is megközelíthető.

Fontos!
Az ingatlan Újfehértó belvárosától 5 percre helyezkedik el. A közelben találhatók iskolák, óvodák, orvosi rendelők, fogászat, gyógyszertár, bank, templom, piac, az Önkormányzati hivatal, a Városi uszoda és számtalan üzlethelyiség is. Továbbá alig 10 percre van a SPAR, a PENNY és a LIDL bevásárló központok is.

Újfehértó város jelenleg az ötödik legnépesebb város Szabolcs-Szatmár-Bereg vármegyében. Nyíregyházától körülbelül 16 kilométerrel délre, Debrecentől 35 kilométerrel északra, a Nyírség Hajdúság felé eső peremén fekszik. Két legfontosabb közúti megközelítési útvonala a 4-es főút, illetve az M3-as autópálya, ezeknek köszönhetően az ország távolabbi részei felől is könnyen megközelíthető.

A hazai vasútvonalak közül a várost a Budapest–Debrecen–Nyíregyháza–Záhony-vasútvonal érinti, melynek egy megállási pontja van itt. A környező kisebb települések közül Hajdúdoroggal, Hajdúböszörménnyel, Nagykállóval, Nyíregyháza Butyka nevű különálló városrészével, Érpatakkal és Kálmánházával mellékutak kötik össze.

Ha felkeltettem érdeklődését, hívja irodánkat bizalommal!
Ha hitelre van szüksége éljen ingyenes, személyre szabott hitel ügyintézési szolgáltatásunkkal is.
Csík Zsolt

Csík Zsolt

Hívjon bizalommal

+36-30-641-Mutasd!

További hirdetéseim

Ingatlaniroda
GDN Ingatlanhálózat - SZIGET
+36 24 656 320

Visszahívást kérek

Hasonló ingatlanok

Keressen bennünket