Ikerház Eladó Üllő - Bozsik József körút

Eladó Üllő Ikerház
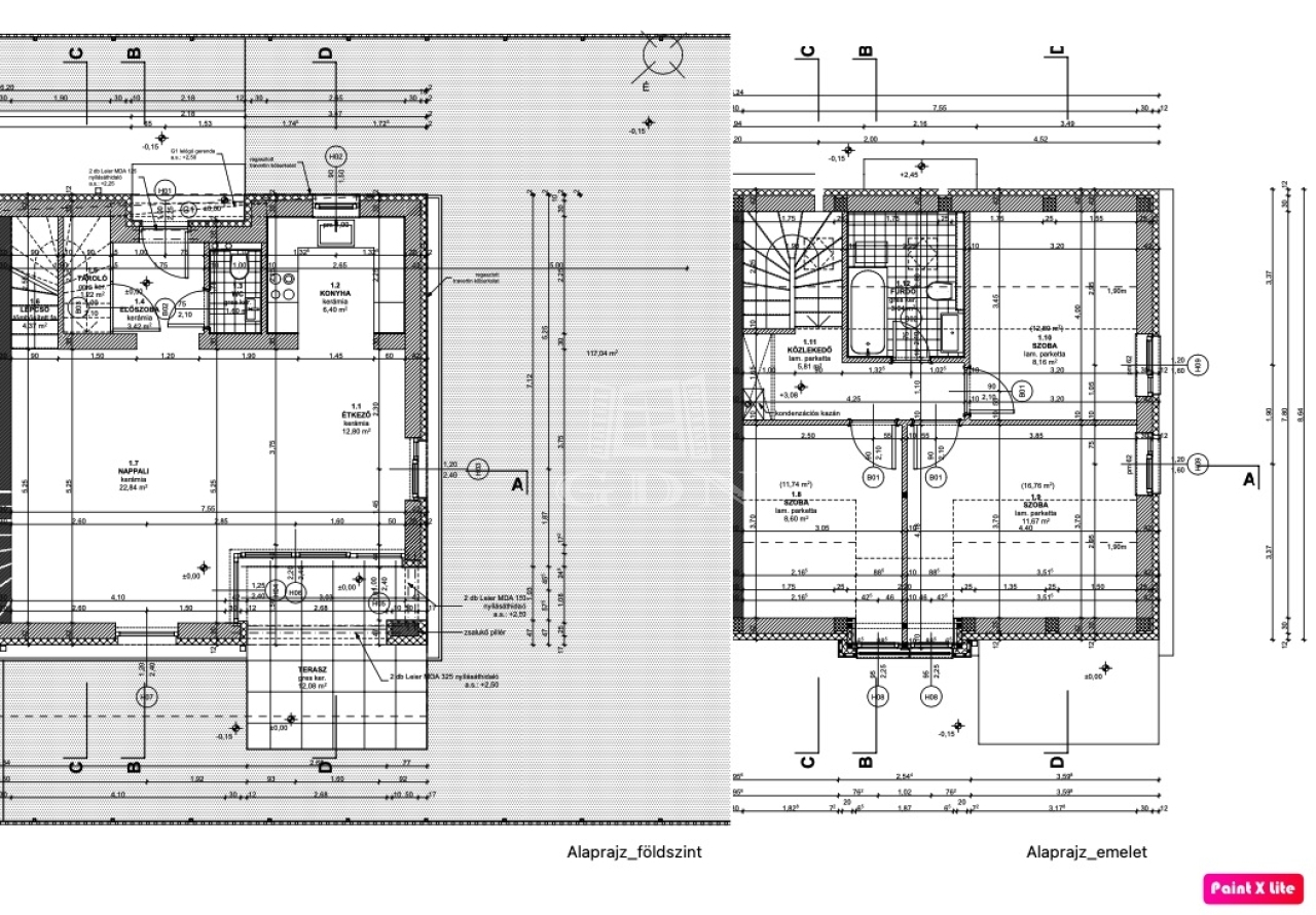
91 m2Alapterület 4 Szoba
109 000 000 Ft Ár
Hitelkalkuláció folyamatban... Loading
393046Azonosító
További adatok

250 m2 Telek

Kertre néző Kilátás

Jó állapotú Állapot

Tégla Szerkezet

12 m2 Erkély/terasz

Megújuló energia Fűtés

Dupla komfort Komfort

Saját beálló Parkolás

Tömegközlekedés

Amerikai konyhás

Van Kertkapcsolat

2019 Építés éve

Délnyugati Tájolás

NAGYCSALÁDOSOK FIGYELEM!

Üllőn a Sportliget lakóparkban, megvételre kínálok egy 2018-ba épült ikerház felet.

Az ingatlan Leiertherm 30N+F kerámia téglából, 10 cm-es homlokzati szigetelőrendszerrel, 10 cm-es YTONG válaszfalakkal, 15 cm-es mennyezeti paplan szigeteléssel épült, 2 rétegű műanyag nyílászáróval szerelt, 3 külön nyíló szobával, dupla komforttal nagy amerikai konyhás nappalival rendelkezik. Fűtését, egy CALEO elektromos rendszer adja.

2019-ben SolarEdge 5,4 kWp napelem rendszer lett telepítve, mely az ingatlan teljes elektromos rendszerét táplálja.
Átlagos éves termelés stabilan 4 - 5,2 MWh.

A földszinten található egy gépészeti helyiség, wc kézmosóval, kényelmes nagy nappali konyhával, közvetlen kertkapcsolattal.

Az emeleten három teljes értékű külön nyíló szoba és egy kádas fürdőszoba lett kialakítva.

A kizárólagos használatú 250 nm-es kert, kényelmes kikapcsolódást nyújt és gyorsan karbantartható.

1 személyautó parkolására van lehetőség.

Közlekedés. Budapest belvárosa 35 - 60 perc autóval, Üllő vasútállomás, 17 perc gyalogosan, 4 perc autóval.

Amennyiben hirdetésem felkeltette érdeklődését, várom hívását a hét bármely napján. tp
Köő Zsolt

Köő Zsolt

Hívjon bizalommal

+36-20-234-Mutasd!

További hirdetéseim

Ingatlaniroda
GDN Ingatlanhálózat - SZIGET
+36 24 656 320