Iroda Eladó Váchartyán - aszfaltozott utcában

Eladó Váchartyán Iroda
544 m2Alapterület 12 + 4 Szoba
110 000 000 Ft Ár
387551Azonosító
További adatok

Kertre néző Kilátás

Jó állapotú Állapot

Tégla Szerkezet

5 m2 Erkély/terasz

Gáz (cirkó) Fűtés

Saját garázs Parkolás

Nincs Lift

Tömegközlekedés

1970 Építés éve

Délkeleti Tájolás

Beruházók figyelem!
Váchartyánban eladó 544 nm-es irodaház-vagy többlakásos családiház (+ 50 nm különálló garázs), 2471 nm-es belterületi, lakóövezeti telken.

A ház 38-as téglából épült az 1970-es évek elején, egyedi tervek alapján.
Sávos betonalapozású, 40 cm-es lábazattal készült.
A tető jó állapotú, palafedésű.
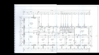
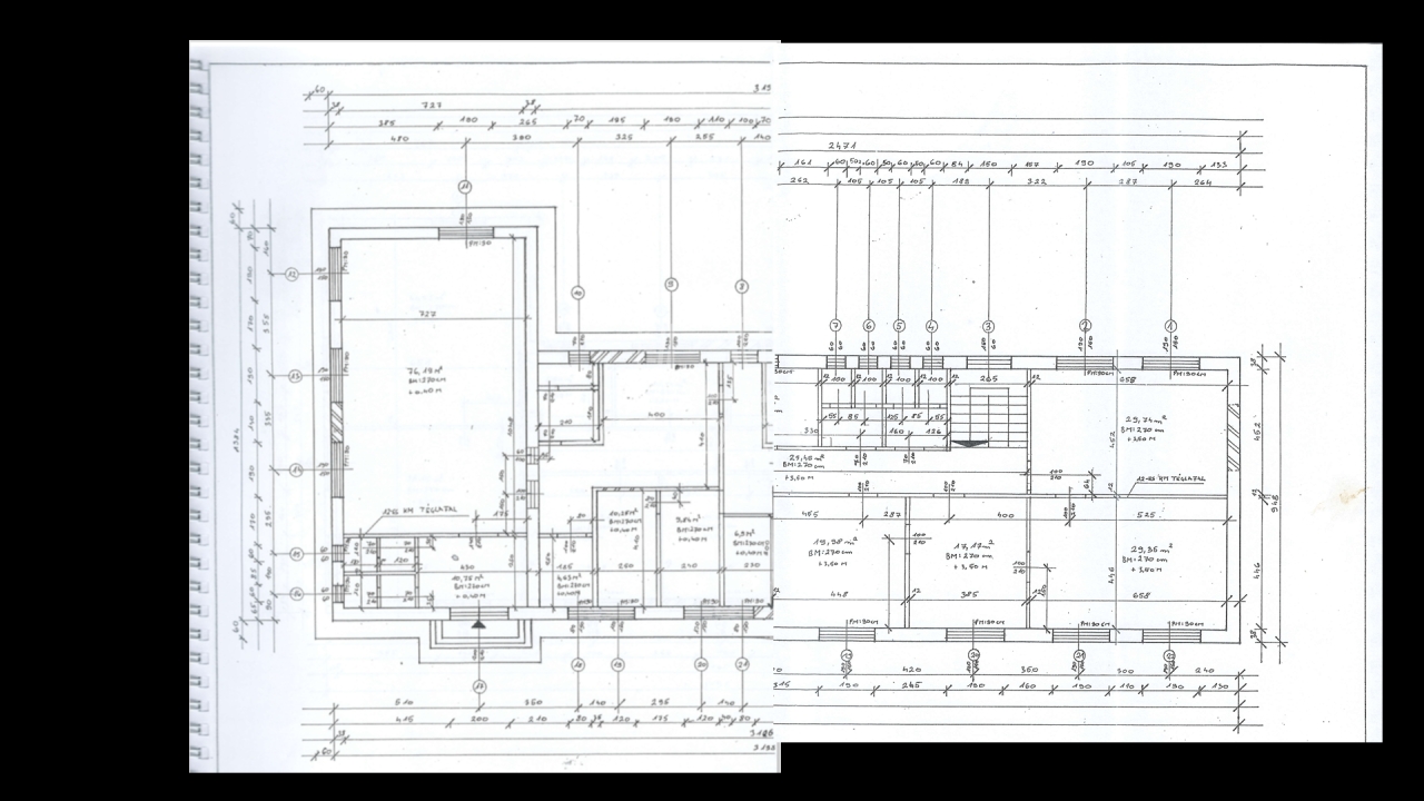
A földszinten egy cirkófűtéses, korszerűsített 100 nm-es lakás, valamint raktárak, irodák, gépészeti helyiségek, wc-k, mosdók és egy 76,19 nm-es tárgyalóterem található.
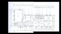
Az emeleti szinten 4 nagyméretű (29,74 nm, 29,35 nm, 38,56 nm, 44,92 nm) tárgyaló,
4 közepes (17,17 nm, 19,98 nm, 19,62 nm, 44 nm),
3 kisméretű (8,06 nm, 10,14 nm, 9,2 nm) irodahelyiség, valamint
2 vizesblokk (női és férfi) került kialakításra.
Az ingatlan áramellátása 3 x 50 Amper. Fűtését gázcirkó és vegyestüzelésű kazán biztosítja.

A telek lakóövezeti, 30%-ban beépíthető, így jelentős mértékben bővíthető. 700 nm-es telkek kialakíthatóak, ezekre kétlakásos lakóépület, vagy kereskedelmi, vendéglátó, és szolgáltató épület létesíthető.

Több lakás kialakításával, bérbeadásával jelentős bevétel realizálható havonta.
Csík Zsolt

Csík Zsolt

Hívjon bizalommal

+36-30-641-Mutasd!

További hirdetéseim

Ingatlaniroda
GDN Ingatlanhálózat - SZIGET
+36 24 656 320

Visszahívást kérek

Keressen bennünket