Ikerház Eladó Vácrátót - Csendes utca

Eladó Vácrátót Ikerház
77 m2Alapterület 4 Szoba
105 000 000 Ft Ár
Hitelkalkuláció folyamatban... Loading
386130Azonosító
További adatok

600 m2 Telek

Udvari Kilátás

Újszerű Állapot

Tégla Szerkezet

15 m2 Erkély/terasz

Hőszivattyú Fűtés

Dupla komfort Komfort

Saját beálló Parkolás

Közepes Tömegközlekedés

Amerikai konyhás

Van Kertkapcsolat

2022 Építés éve

Délkeleti Tájolás

ÁRZUHANÁS !!! Vácrátóton, eladó, 2022-ben épült, modern ikerházrész – 4 szobával és saját udvarral!

Vácrátót csendes, fejlődő részén kínálunk eladásra egy 77 m²-es, 4 szobás ikerházrészt, amely minden kényelmet és korszerű műszaki megoldást biztosít új tulajdonosának. Az ingatlan egy víz, villany, csatorna bekötéssel rendelkező telken helyezkedik el, (gázvezeték az utcában) használati megosztással és kerítéssel elválasztott, saját udvarrésszel.

A DK-i tájolású ház tégla falazattal, 3 rétegű műanyag nyílászárókkal, 10 cm-es grafit szigeteléssel és cserép héjazattal épült. A fűtést korszerű hőszivattyú és padlófűtés biztosítja, a meleg vizet pedig egy 100 literes villanybojler szolgáltatja. A nyári komfortot klímaberendezés segíti.
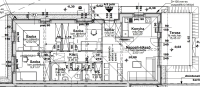
A belső elrendezés praktikus és családbarát:
•3 hálószoba
•amerikai konyhás nappali közvetlen teraszkapcsolattal
•1 fürdőszoba + WC
•1 zuhanyzó + WC
•előtér

A ház biztonsági és kényelmi felszereltsége is kiemelkedő: riasztó, redőnytokok (a nappaliban elektromos kiállással), napelem előkészítés, valamint elektromos kapu előkészítés. Parkolás az udvaron vagy az utcán lehetséges.

A környék nyugodt és biztonságos, a település folyamatosan fejlődik, és minden fontos közintézmény, mint óvoda, iskola, orvosi rendelők, művelődési ház, sportcsarnok a központban kb. 1,5 km távolságban található. Ugyanitt van ABC, virágbolt, bisztro étterem.
A település újépítésű bölcsődéje 300 m-re van, amelyet a közeljövőben tovább bővítenek.

Az egyik különlegessége a falunak, hogy itt található az ország egyik csodálatos botanikus kertje.
Vácrátót Budapest agglomerációjában helyezkedik el Váctól 15 km távolságra; könnyen elérhető a főváros, miközben megőrzi a vidéki környezet nyugalmát. Az M2-es autóúthoz mindössze 5 perc autóútra található, míg vonat- és buszközlekedés is elérhető Vácra, Budapestre, Gödöllőre.

Ha felkeltette az érdeklődésedet az ingatlan, szívesen adunk további információt, vagy egyeztethetünk egy személyes megtekintést.

Amiben segíteni tudjuk ingatlanvásárlását:
•jogi háttér
•földhivatali ügyintézés
•ingyenes, bankfüggetlen hitelügyintézés (CSOK és Babaváró ügyintézés is)
•energetikai tanúsítvány elkészítése
•biztosítás
•belsőépítész
Apolzan Magdalena

Apolzan Magdalena

Hívjon bizalommal

+36-70-908-Mutasd!

További hirdetéseim

Ingatlaniroda
GDN Ingatlanhálózat - SZIGET
+36 24 656 320