Casa Familiala Vânzare Budapest X. Cartier - Szőlőtelep utca

Vânzare Budapest X. kerület Casa Familiala
167 m2Suprafaţa 5 Camere
195 000 000 HUF Preţ
394706Identificare
Mai multe detalii

409 m2 Teren

Vedere spre grădină Vedere

Proprietate nouă Stare

Caramida Structură

13 m2 Balcon/Terasă

Pompă de căldură Încălzire

Dupla komfort Confort

Garaj Propriu Parcare

Excelent Transport public

Bucătarie deschisă

Existent Acces la grădină

2026 An construcție

Sud Orientare

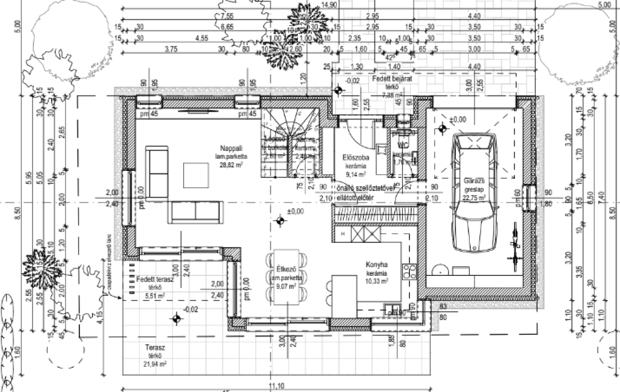
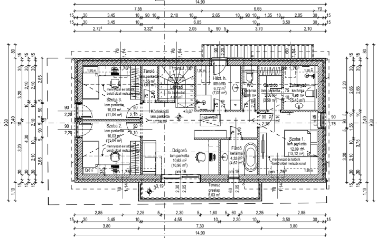
Eladó családi ház Budapest X. kerületében, a Panka közben, csendes, kertvárosi környezetben, magas műszaki tartalommal.

A nettó 145 m2 alapterületű otthonhoz 22,75 m2 garázs tartozik.
Önálló 409 m2-es telek!

Az ingatlan korszerű, időtálló szerkezetekkel épül: fő falazata 30 cm vastag POROTHERM 30 N+F téglából készül, a homlokzaton 15 cm vastag grafitos hőszigeteléssel. A lábazati részen XPS, míg a vasbeton szerkezetek külső oldalán kiegészítő EPS hőszigetelés biztosítja a kiváló energiahatékonyságot. A belső válaszfalak 10 cm vastag kerámia falazóelemekből épülnek.

A tető Terrán Zenit Max cserépfedést kap elegáns Moon szürke színben. A nyílászárók korszerű, háromrétegű hőszigetelt üvegezésű, fenyő színű műanyag szerkezetek, többpontos biztonsági bejárati ajtóval.

A burkolatok igényes kialakításúak: a hálószobákban laminált parketta, míg a vizes helyiségekben kerámia járólap és csempe készül. A külső terek is rendezettek, a gépkocsi beálló és a járdák térkő burkolatot kapnak.

A gépészet modern és energiatakarékos: levegő–levegő rendszerű hőszivattyú biztosítja a mennyezeti hűtés-fűtést, amelyet a nappali szinten padlófűtés egészít ki a maximális komfort érdekében.

Ez az ingatlan ideális választás mindazok számára, akik minőségi kivitelezésű, alacsony fenntartású, modern otthont keresnek a főváros egyik nyugodt részén.
ID:
Kémeri-Szekernyés Tímea

Kémeri-Szekernyés Tímea
Agent de publicitate

Contactează-mă!

+36-30-248-Arată

Mai multe anunțuri

Agenție Imobiliară
GDN Rețea de agenții imobiliare - SZIGET
+36 24 656 320

Sună-mă

Proprietăți similare