Locuinta (caramida) Vânzare Kiskunlacháza - Pest megye

Vânzare Kiskunlacháza Locuinta (caramida)
35 m2Suprafaţa 1 Camere
38 764 000 HUF Preţ
379507Identificare
Mai multe detalii

Curte Vedere

Proprietate nouă Stare

Caramida Structură

Pompă de căldură Încălzire

Confort 1 Confort

Garaj/Parcare de vanzare Parcare

Etaj Parter

Existent Lift

Mediu Transport public

Bucătarie deschisă

Inexistent Acces la grădină

2025 An construcție

Nord Orientare

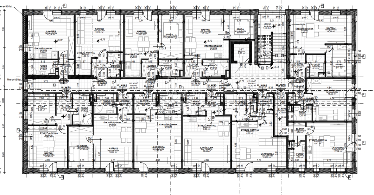
KISKUNLACHÁZA ÚJ ZÖLD OTTHONAI, A+ ENERGIATAKARÉKOS LAKÁSOK 2026 ELSŐ NEGYEDÉVI ÁTADÁSSAL!

Elindult Kiskunlacháza legújabb, A+ energetikai besorolású lakóprojektje!
Egy háromszintes, liftes, modern társas-házban most 31 vadonatúj, energia-hatékony lakás várja első tulajdonosait!
Itt a modern életstílus és a fenntarthatóság találkozik, zöld hitelre és Otthon Start hitelre is megvásárolható!

Lakások 28–56 m² között, minden élethelyzetre:
Praktikus garzonok és nappali + 1 vagy 2 szobás elrendezések
Földszinti lakások erkély nélkül.
1. emeleti lakások francia erkéllyel.
2. emeleti lakások tágas teraszokkal – akár 30 m² privát kültérrel!

A feltüntetett ár földszint 11-es lakásra vonatkozik, 35,24 m2 lakótér, helyiségei: amerikai konyhás nappali, előtér, fürdőszoba.

Átadás: 2026 első negyedév.

Műszaki tartalom, ahol a jövő már ma beköltözött:

-A+ energetikai besorolás
-Hőszivattyús fűtés + padlófűtés minden lakásban
-Fan-coil hűtés, mennyezeti befúvassál
-10 cm Dryvit homlokzati szigetelés
-3 rétegű műanyag nyílászárók redőny előkészítéssel
-Téglafalazat, vasalt beton alap, monolit födém, betoncserép fedés
-Választható hideg/meleg burkolatok (5.000 Ft/m² értékhatárig)

Kényelem és biztonság:

Teremgarázs – 3.500.000 Ft
Felszíni parkolóhely – 1.500.000 Ft
Tárolók különböző méretben elérhetők
Zárt, parkosított udvar, modern liftes épület

Miért ez a projekt?

A+ energetika
Zöld hitelre és Otthon Start hitelre is megvásárolható
Kiváló elhelyezkedés Kiskunlacháza központjában
Budapest csak 28 km
Megbízható, céges kivitelezés
10% foglalóval leköthető

Korszerű, energia-hatékony, jövőbiztos otthonok, most bevezető áron!
Ne maradj le Kiskunlacháza legmodernebb lakóparkjáról, az érdeklődés óriási!

Hívj most, és válaszd ki új otthonod, amíg még van választék!
FINANSZÍROZÁS:
Nálunk mindent egy helyen intézhet:
- hivatalos ingatlanközvetítés;
- szakszerű jogi képviselet;
- profi CSOK-PLUSZ, és hitelügyintézés: 16 Bank, több mint 100 konstrukció;

A részletes adatvédelmi tájékoztató folyamatosan elérhető a gdn-ingatlan adatvedelmi oldalon.
Csík Zsolt

Csík Zsolt
Agent de publicitate

Contactează-mă!

+36-30-641-Arată

Mai multe anunțuri

Agenție Imobiliară
GDN Rețea de agenții imobiliare - SZIGET
+36 24 656 320