Casa Familiala Vânzare Kecskemét - Miklóstelepi út

Vânzare Kecskemét Casa Familiala
126 m2Suprafaţa 4 Camere
129 900 000 HUF Preţ
392977Identificare
Mai multe detalii

3000 m2 Teren

Stradal Vedere

Proprietate nouă Stare

Caramida Structură

36 m2 Balcon/Terasă

Gaz Încălzire

Dupla komfort Confort

Parcare proprie Parcare

Bun Transport public

Nu Bucătarie deschisă

Existent Acces la grădină

2026 An construcție

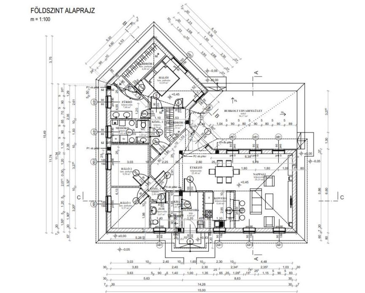
Kecskemét csendes, nyugodt részén eladó egy nettó 126 m²-es, nappali + 3 szobás, modern kialakítású új építésű családi ház, hatalmas, 3001 m²-es önálló telken!
Ez az otthon ideális választás mindazok számára, akik tágas életteret, korszerű műszaki tartalmat és nagy kertet keresnek – akár családalapításhoz, akár nyugodt vidéki élethez.
Főbb jellemzők
✔ 126 m² lakótér
✔ Nappali + 3 külön nyíló szoba
✔ 45 m²-es, világos, amerikai konyhás nappali
✔ 2 fürdőszoba
✔ 2 gardrób
✔ 36 m²-es terasz
✔ 3001 m²-es, önálló telek
✔ 2026 év eleji átadás
Műszaki tartalom
Bosch kazán padlófűtéssel
2 db klíma
15 cm homlokzati szigetelés
30 cm födémszigetelés
Műanyag nyílászárók redőnnyel és szúnyoghálóval
Teljesen körbekerített telek
A korszerű szigetelésnek és a modern gépészetnek köszönhetően az ingatlan energiatakarékos, fenntartási költsége kedvező.
Telek és környezet
A 3001 m²-es telek rengeteg lehetőséget kínál:
medence, játszótér vagy kerti konyha kialakítására
melléképület, műhely vagy garázs építésére
akár gazdálkodásra, kertészkedésre is
A körbekerített terület biztonságos, gyermekes családok és kisállattartók számára is ideális.
Kinek ajánljuk?
Többgyermekes családoknak
Nyugodt, tágas életteret keresőknek
Befektetőknek értékálló új építésű ingatlanként
Ha egy modern, jól átgondolt elrendezésű, nagy telken fekvő új otthont keres Kecskeméten, ezt az ingatlant érdemes megnéznie!
További információért és megtekintésért keressen bizalommal!
Gergicsné B. Enikő

Gergicsné B. Enikő
Agent de publicitate

Contactează-mă!

+36-30-941-Arată

Mai multe anunțuri

Agenție Imobiliară
GDN Rețea de agenții imobiliare - SZIGET
+36 24 656 320