Casa Familiala Vânzare Székesfehérvár - Belváros szélén, Öreghegy közelében

Vânzare Székesfehérvár Casa Familiala
200 m2Suprafaţa 5 + 2 Camere
175 000 000 HUF Preţ
393378Identificare
Mai multe detalii

1097 m2 Teren

Vedere spre grădină Vedere

Stare bună Stare

Caramida Structură

34 m2 Balcon/Terasă

Gaz Încălzire

Confort 1 Confort

Garaj Propriu Parcare

Bun Transport public

Bucătarie deschisă

Existent Acces la grădină

2001 An construcție

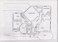
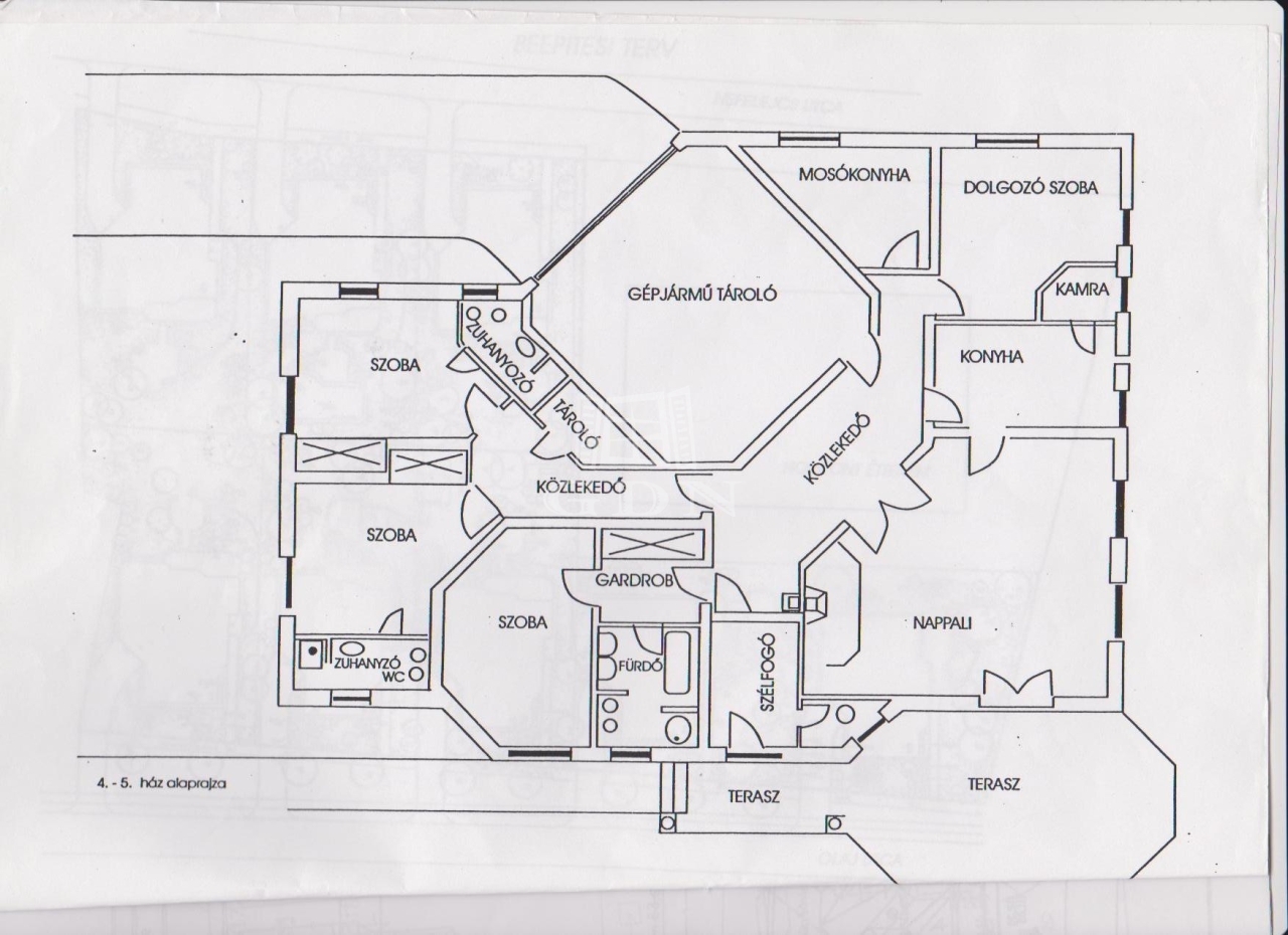
H-004202, Felsővárosban, a Belvároshoz közel, frekventált helyen összközműves építési telken eladó, egy 2000-ben épült egyszintes, 200m2 alapterületű, nappali + 4 teljes értékű szobával rendelkező önálló családi ház, dupla garázzsal.

Az épület fűtéséről kondenzációs gázkazán gondoskodik, radiátoros hőleadással, a melegvizet napkollektor szolgáltatja. A nyílászárók korszerű műanyag redőnnyel ellátott. A burkolata magas minőségű járólap, illetve szőnyegpadló.
Elosztását tekintve:
- 200 m2 hasznos alapterület, folyosó, nappali-konyha-étkező, 4 tágas hálószoba gardróbbal, 3 ezek közül saját fürdőszobával, vendég WC, mosókonyha, gépészeti helység, 24 m2 fedett terasz, kétállásos garázs

Fontosabb paraméterek:
● 2000-ben épült
● 1097m2 telekterület
● vastag tégla falazat (Porotherm 38 cm + 15 cm grafitos szigetelés), zsindely tetőfedés
● 25 cm vastag tégla teherhordó falazat, a szobák között 20 cm-es hangszigetelt tégla falazat
● nappali + 4 hálószoba + gardrób + mosókonyha + gépészeti helyiség
● 3 fürdőszoba melyből 2, a 2 szobához közvetlenül kapcsolódik
● 1 szintes, akadálymentesített bejutás
● gázkazán + radiátoros hőleadás
● klíma előkészítés
● 34 m2 terasz

A ház extrái:
► napkollektor a tetőn
► hangulatos fatüzelésű kandalló
► vízlágyító rendszer
► öntöző rendszer
► dupla garázs 41 nm, térköves kocsibeálló, járda
► széles utcafront
► parkosított, örökzöldekkel telepített kert
► körbekerített telek, utcafronton kovácsoltvas elektromos kapu
► tetőtér igény szerint beépíthető

Az utcai kapu elektromosan nyitható, az udvar térkövezett, parkosított. Itt található egy, egy fedett terasz illetve a kertben egy tároló. A kertben kerti kiülő, gyümölcsfa, örökzöld megtalálható. Tehermentes, azonnal költözhető.

Eladási irányár: 175 M Ft

A vásárláshoz, a jelenleg aktuális családok otthonteremtésére vonatkozó összes támogatás igénybe vehető (CSOK Plusz, Jelzáloghitel, Babaváró kölcsön, Piaci hitel, Felújítási támogatás…)

Ha felkeltette érdeklődését, hívja irodánkat bizalommal, éljen ingyenes, személyre szabott hitelügyintézés szolgáltatásunkkal. Segítünk továbbá adásvételhez szükséges ügyvédi közreműködésben, energetikai tanúsítvány, valamint értékbecslés elkészítésében.

For English information please send a message.
Apolzan Magdalena

Apolzan Magdalena
Agent de publicitate

Contactează-mă!

+36-70-908-Arată

Mai multe anunțuri

Agenție Imobiliară
GDN Rețea de agenții imobiliare - SZIGET
+36 24 656 320