Duplex Vânzare Szigetszentmárton - Egyszintes Újépítésű, Garázzsal!

Vânzare Szigetszentmárton Duplex
106 m2Suprafaţa 4 Camere
93 000 000 HUF Preţ
392773Identificare
Mai multe detalii

350 m2 Teren

Vedere spre grădină Vedere

Proprietate nouă Stare

Caramida Structură

12 m2 Balcon/Terasă

Gaz Încălzire

Confort 1 Confort

Garaj Propriu Parcare

Mediu Transport public

Bucătarie deschisă

Existent Acces la grădină

2025 An construcție

Sud Est Orientare

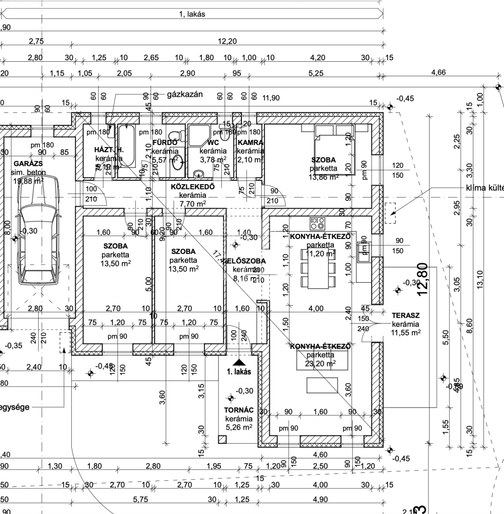
SZIGETSZENTMÁRTON ÚJÉPÍTÉSŰ INGATLANOK környezetében, AZONNAL KÖLTÖZHETŐ, nettó 105.8 m2-es + 11.55 m2 terasz +19.9 m2-es garázsos, nappali + 3 szobás, GARÁZZSAL ÉRINTKEZŐ, MODERN, EGYSZINTES, ÚJÉPÍTÉSŰ, IKERHÁZAT kínálunk eladásra!

Az ingatlan egy csendes, átmenő forgalomtól mentes, szilárd burkolatú zsákutcában található.

Műszaki tartalom /Részlet/
-falazat: Porotherm tégla, 15cm dryvit homlokzat szigetelés,
-tető: antracit színű betoncserép héjazat
-szigetelés: padlóban 10 cm-es, a padláson 20 cm-es tűzálló, fújt szigetelés
-riasztó és kamera vezetékezés kiépített
-nyílászárók: háromrétegű üvegezéssel ellátott műanyag ablakok
-térkövezett autóbeálló

Helyiségei:
- előszoba 8,16 m2
- amerikai konyha nappali+étkező 34.4 m2
- hálószoba 13.86 m2
- hálószoba 13.5 m2
- hálószoba 13.5 m2
- kádas fürdőszoba+WC 5.57 m2
- zuhanyzós fürdőszoba+WC 3.7 m2
- kamra 2.1 m2
- közlekedő-folyosó 7.7 m2
- háztartási helyiség 3.8 m2

- garázs 19.88 m2
- terasz 11.55 m2
- bejárat terasz 5.26 m2

A ház fűtését és a meleg víz ellátását Ariston kondenzációs kombi gáz-cirkó kazán biztosítja, padlófűtésessel kiépítve.
Az ingatlan hűtéséről a nappaliban lévő split klíma gondoskodik.

Az ikerház CSOK PLUSZ, valamint 3% START hitelre és egyéb kedvező hitelekre alkalmas.
(Szükség esetén ingyenes hitelügyintézéssel)

Az ingatlan tehermentes, könnyen megközelíthető!

Szigetszentmárton egy kis, hangulatos Duna-parti község Pest vármegyében, a Ráckevei járásban, Budapesttől kb. 40 km-re délre.
A nyugodt, családias község kiváló lehetőségeket kínál a vízi turizmus és a pihenés kedvelőinek.
Szigetszentmárton ideális célpont azoknak, akik a főváros közelségében keresnek vízparti kikapcsolódást.

Duna-part 500 méteren belül megközelíthető.
Általános iskola 350 méter, bolt, posta, buszmegálló 5 perc gyalogos távolságban elérhető.

Az ingatlan megtekintése előre egyeztetett időpontban lehetséges, akár hétvégén is.
Bővebb információkkal kapcsolatban várom jelentkezését, keressen bizalommal a hét minden napján!
Apolzan Magdalena

Apolzan Magdalena
Agent de publicitate

Contactează-mă!

+36-70-908-Arată

Mai multe anunțuri

Agenție Imobiliară
GDN Rețea de agenții imobiliare - SZIGET
+36 24 656 320