Casa Familiala Vânzare Gárdony - Gárdony-Dinnyés

Vânzare Gárdony Casa Familiala
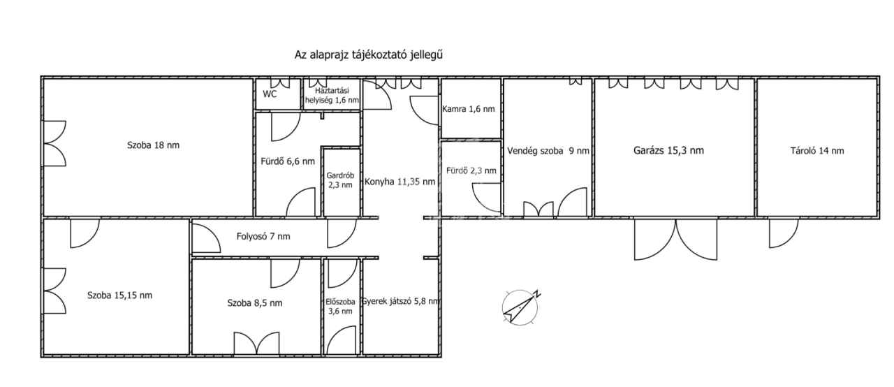
95 m2Suprafaţa 3 + 2 Camere
93 000 000 HUF Preţ
393831Identificare
Mai multe detalii

1243 m2 Teren

Curte Vedere

Renovat Stare

Zidărie mixtă Structură

Electric Încălzire

Dupla komfort Confort

Parcare proprie Parcare

Bun Transport public

Nu Bucătarie deschisă

Existent Acces la grădină

1972 An construcție

Sud Vest Orientare

Van egy hely Dinnyésen, ahol a reggeli kávé nem rohanással indul… hanem madárcsicsergéssel, napfénnyel és egy hatalmas kert nyugalmával.

Gárdony-Dinnyés csendes, természetközeli részén kínálok megvételre egy 95 m²-es, teljeskörűen felújított családi házat, 1243 m²-es telken, egy olyan otthont, ahol a modern technológia és a vidéki nyugalom tökéletes egyensúlyban van.

A világos nappali és a több külön nyíló szoba lehetőséget ad arra, hogy mindenki megtalálja a saját helyét, legyen szó pihenésről, munkáról vagy közös pillanatokról. A 3 szoba + 2 fél szoba rugalmasan alakítható: hálók, dolgozószoba, vendégtér – ahogy az élet hozza.

És ami igazán különlegessé teszi: a kert.
Több mint 1200 m² szabadság, ahol egy hangulatos filagória alatt eltöltött este, egy nyári grillezés vagy akár egy csendes délután teljesen új értelmet nyer. Ez nem csak telek, ez egy életérzés.

Az ingatlan műszaki tartalma kiemelkedő:
2021-es felújítás során megújult a tető, a teljes villamos hálózat, a nyílászárók és a szigetelés is. A 10 kW-os napelem rendszer és az energiahatékony megoldások révén a fenntartás költsége minimális, itt a rezsi nem stresszforrás, hanem szinte elfelejthető tényező.
A komfortérzetet hűtő-fűtő klímák, norvég panelek, okos világítás és kamera rendszer emelik új szintre. A duplakomfortos kialakítás pedig a mindennapok praktikumát szolgálja.

A környezet csendes, mégis élhető:
helyben elérhető alapvető szolgáltatások, a Velencei-tó közelsége, gyors kapcsolat az autópályához és Székesfehérvárhoz. Itt valóban megvan az az egyensúly, amit sokan keresnek, de kevesen találnak meg.

Ez az otthon ideális választás mindazoknak, akik:
– kiszakadnának a városi zajból, de nem akarnak lemondani a kényelemről
– értékelik a felújított, modern műszaki tartalmat
– nagy teret szeretnének maguk körül, bent és kint is
– hosszú távon gondolkodnak, tudatos döntést hozva

Ha olyan helyet keres, ahol a nyugalom nem kompromisszum, hanem alapállapot…akkor ezt az otthont érdemes személyesen is megtapasztalni.
Apolzan Magdalena

Apolzan Magdalena
Agent de publicitate

Contactează-mă!

+36-70-908-Arată

Mai multe anunțuri

Agenție Imobiliară
GDN Rețea de agenții imobiliare - SZIGET
+36 24 656 320