Квартира (кирпичная) Продается Budapest XIII. mикрорайон - Hegedűs Gyula utca

Продается Budapest XIII. kerület Квартира (кирпичная)
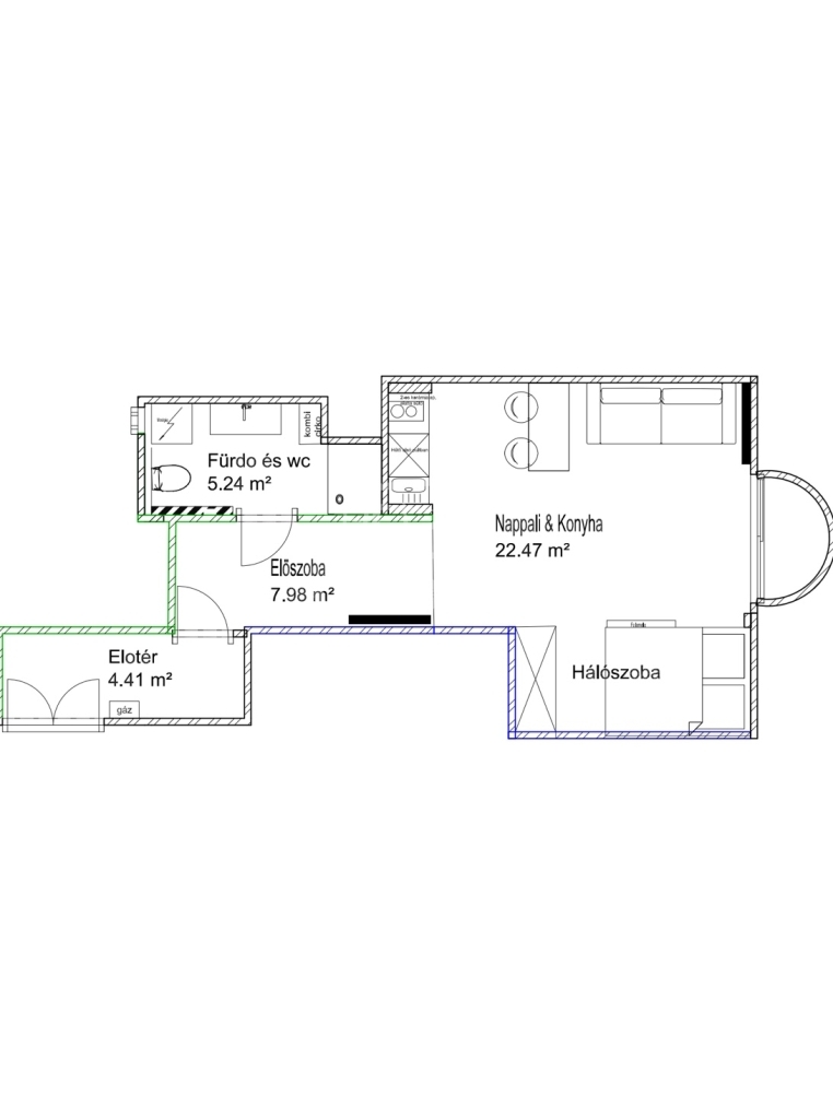
36 m2Площадь 1 Комната
74 900 000 HUF Цена
383476Идентификация
Прочие данные

Уличная вид

Отремонтированная Cостояние

Tégla Kонструкция

3 m2 балкон/терраса

Газ (циркуляционный) отопление

Luxusné Kомфортность

На улице, в общественном месте парковка

Этаж 2

Есть Лифт

Kiváló Общественный транспорт

Американская кухня

Нет Есть сад

1964 Год строительства

Délnyugat Расположение

RITKASÁG ÚJLIPÓTVÁROSBAN – ERKÉLYES, NAPOS, AZONNAL KÖLTÖZHETŐ!

Eladó a XIII. kerület egyik legkedveltebb részén, a Hegedűs Gyula utcában egy 2. emeleti, utcára néző, erkélyes, teljeskörűen és magas minőségben felújított 36 nm-es lakás (+3 nm erkély), liftes, rendezett társasházban.

Főbb jellemzők:
• Világos, napfényes elrendezés, nappali + hálórész
• Lakberendező által tervezett enteriőr, egyedi bútorzat
• Modern épített zuhanyzós fürdő, ízléses burkolatok
• Gépesített, egyedi konyha
• Klíma, modern világítás
• Jogilag rendezett, használati megosztással, almérőkkel

Lokáció:
• Szent István park, Duna-part, Margitsziget pár perc séta
• Kiváló közlekedés, csendes, zöld belső kert

Kiváló befektetés rövid vagy hosszú távú kiadásra, de saját otthonnak is tökéletes.

Gyorsan költözhető!
Megtekintés előre egyeztetett időpontban lehetséges.

Ne maradjon le – jöjjön el, nézze meg, tegyen ajánlatot!
Kémeri-Szekernyés Tímea

Kémeri-Szekernyés Tímea

Звоните нам с доверием

+36-30-248- Показать

Другие объявления

Aгентств недвижимости
GDN Сеть недвижимости - SZIGET
+36 24 656 320