Квартира (кирпичная) Продается Budapest XIII. mикрорайон - Országbíró utca

Продается Budapest XIII. kerület Квартира (кирпичная)
69 m2Площадь 2 + 1 Комната
100 050 000 HUF Цена
392819Идентификация
Прочие данные

866 m2 Yчасток

Уличная вид

Новостройка Cостояние

Tégla Kонструкция

2 m2 балкон/терраса

Тепловой насос отопление

plným komfortom Kомфортность

На улице, в общественном месте парковка

Этаж 2

Последний этаж

Нет Лифт

Dobrý Общественный транспорт

Американская кухня

Нет Есть сад

Чердачная недвижимость

2027 Год строительства

Délkelet Расположение

ÚJ ÉPÍTÉSŰ INGATLANOK 2027 KÖLTÖZÉSSEL!

Angyalföld:

Angyalföld Budapest XIII. kerületének legnagyobb városrésze, amely az egykori ipari zónából mára modern lakó- és irodanegyeddé alakult át. Hagyományos ipari zónák helyén ma már irodaházak, kereskedelmi egységek és a Duna-parton luxuslakások találhatók.

Az épület tettérbeépítése során törekedtünk olyan lakások kialakítására, ami a mai lakásigényeknek felel
meg, mint amerikai konyhás nappali és külön hálószoba. Változatos lakásokat alakítottunk ki úgy
méretükben, mint elrendezésükben.

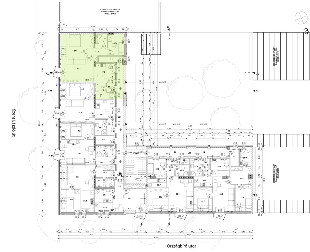
17 lakás.
Előszoba: 2.35 nm.
Fürdőszoba: 5.49 nm.
Konyha+ étkező: 10,01 nm.
Nappali: 21.48 nm.
Közlekedő: 4.39 nm.
Hálószoba: 17.08 nm.
Fürdőszoba: 4.05 nm.
Halószoba: 8.53 nm.
Erkély: 1.52 nm.

Fizetés: készültségi fokozathoz kötött fizetési ütemezés.

A további kérdésekkel és a megtekintéssel kapcsolatban, kérem keressen a megadott mobil számon.
Köő Zsolt

Köő Zsolt

Звоните нам с доверием

+36-20-234- Показать

Другие объявления

Aгентств недвижимости
GDN Сеть недвижимости - SZIGET
+36 24 656 320