Квартира (кирпичная) Продается Budapest XIII. mикрорайон - Országbíró utca

Продается Budapest XIII. kerület Квартира (кирпичная)
52 m2Площадь 2 + 1 Комната
88 400 000 HUF Цена
392827Идентификация
Прочие данные

866 m2 Yчасток

Уличная вид

Новостройка Cостояние

Tégla Kонструкция

2 m2 балкон/терраса

Тепловой насос отопление

plným komfortom Kомфортность

На улице, в общественном месте парковка

Этаж 2

Последний этаж

Нет Лифт

Dobrý Общественный транспорт

Американская кухня

Нет Есть сад

Чердачная недвижимость

2027 Год строительства

Északkelet Расположение

ÚJ ÉPÍTÉSŰ INGATLANOK 2027 KÖLTÖZÉSSEL!

Angyalföld:

Angyalföld Budapest XIII. kerületének legnagyobb városrésze, amely az egykori ipari zónából mára modern lakó- és irodanegyeddé alakult át. Hagyományos ipari zónák helyén ma már irodaházak, kereskedelmi egységek és a Duna-parton luxuslakások találhatók.

Az épület tettérbeépítése során törekedtünk olyan lakások kialakítására, ami a mai lakásigényeknek felel
meg, mint amerikai konyhás nappali és külön hálószoba. Változatos lakásokat alakítottunk ki úgy
méretükben, mint elrendezésükben.

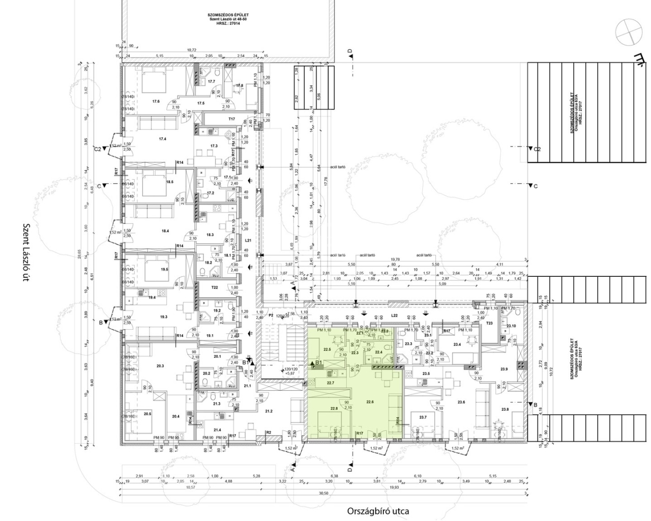
22 lakás.
Előtér: 2.34 nm.
WC: 1.48 NM.
Előszoba:3.02 nm.
Fürdőszoba: 3.75 nm.
Konyha: 4.45 nm.
Nappali: 19.78 nm.
Közlekedő: 4.39 nm.
Hálószoba: 8.48 nm.
Hálószoba: 8.87 nm.
Erkély: 1.52 nm.

Fizetés: készültségi fokozathoz kötött fizetési ütemezés.

A további kérdésekkel és a megtekintéssel kapcsolatban, kérem keressen a megadott mobil számon.
Kémeri-Szekernyés Tímea

Kémeri-Szekernyés Tímea

Звоните нам с доверием

+36-30-248- Показать

Другие объявления

Aгентств недвижимости
GDN Сеть недвижимости - SZIGET
+36 24 656 320