Квартира (кирпичная) Сдается в аренду Budapest XIII. mикрорайон - Bulcsú utca

Сдается в аренду Budapest XIII. kerület Квартира (кирпичная)
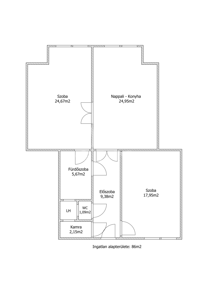
86 m2Площадь 3 Комната
390 000 HUF /месяц Цена
393493Идентификация
Прочие данные

Уличная вид

В хорошем состоянии Cостояние

Tégla Kонструкция

Газ (конвектор) отопление

Comfort Kомфортность

На улице, в общественном месте парковка

Этаж 2

Есть Лифт

Домашние животные No

Kiváló Общественный транспорт

Американская кухня

Нет Есть сад

1930 Год строительства

Общие сборы 33 000 HUF

Délnyugat Расположение

Azonnal költözhető, 3 szobás lakás a Lehel téri piacnál – kiváló közlekedéssel, hosszú távra kiadó, egyetemistáknak és cégeknek is ideális


Budapest egyik frekventált részén, a Bulcsú utcában, közvetlenül a Lehel téri piac szomszédságában, kiadó egy jó állapotú, téglaépítésű társasház második emeletén található, 86 m²-es, világos lakás.
Az ingatlan három külön nyíló szobával rendelkezik, így ideális választás lehet családoknak, baráti társaságoknak vagy egyetemistáknak is.

A lakás elrendezése tágas és praktikus, a nagy ablakoknak köszönhetően napfényes és kellemes hangulatú.
A konyha teljesen felszerelt és gépesített, a fürdőszoba berendezése szintén rendelkezésre áll, így az ingatlan azonnal költözhető állapotban várja új bérlőit. A lakás bútorozott, ezért külön berendezésre nincs szükség.
Az ablakok utcai kilátással rendelkeznek, a környék pezsgő, városi hangulatú, miközben minden fontos szolgáltatás karnyújtásnyira található.

Kiváló lokáció és közlekedés
A lakás egyik legnagyobb előnye az elhelyezkedése: a Lehel téri piac közvetlen közelében található, ahol bevásárlási lehetőségek, üzletek, éttermek és szolgáltatások széles választéka elérhető.

A közlekedés kiemelkedően jó:
• M3 metró néhány perc sétára
• több villamos- és buszjárat a közelben
• gyors elérés a belváros és az egyetemek felé

Bérleti feltételek
Bérleti díj: 390.000 Ft / hó + rezsi
Kaució: 2 havi kaució

A lakás munkáltatói igazolással, határozatlan idejű munkaszerződéssel, valamint közjegyzői bérleti szerződéssel bérelhető.
A közjegyzői szerződés költsége a bérlőt terheli.


✨ Az ingatlan kiváló elhelyezkedése, tágas terei és azonnali költözhetősége miatt ritka lehetőség a környéken – érdemes mielőbb megtekinteni!
Köő Zsolt

Köő Zsolt

Звоните нам с доверием

+36-20-234- Показать

Другие объявления

Aгентств недвижимости
GDN Сеть недвижимости - SZIGET
+36 24 656 320

Перезвоните мне