Квартира (кирпичная) Продается Budapest XIX. mикрорайон - Vas Gereben köz

Продается Budapest XIX. kerület Квартира (кирпичная)
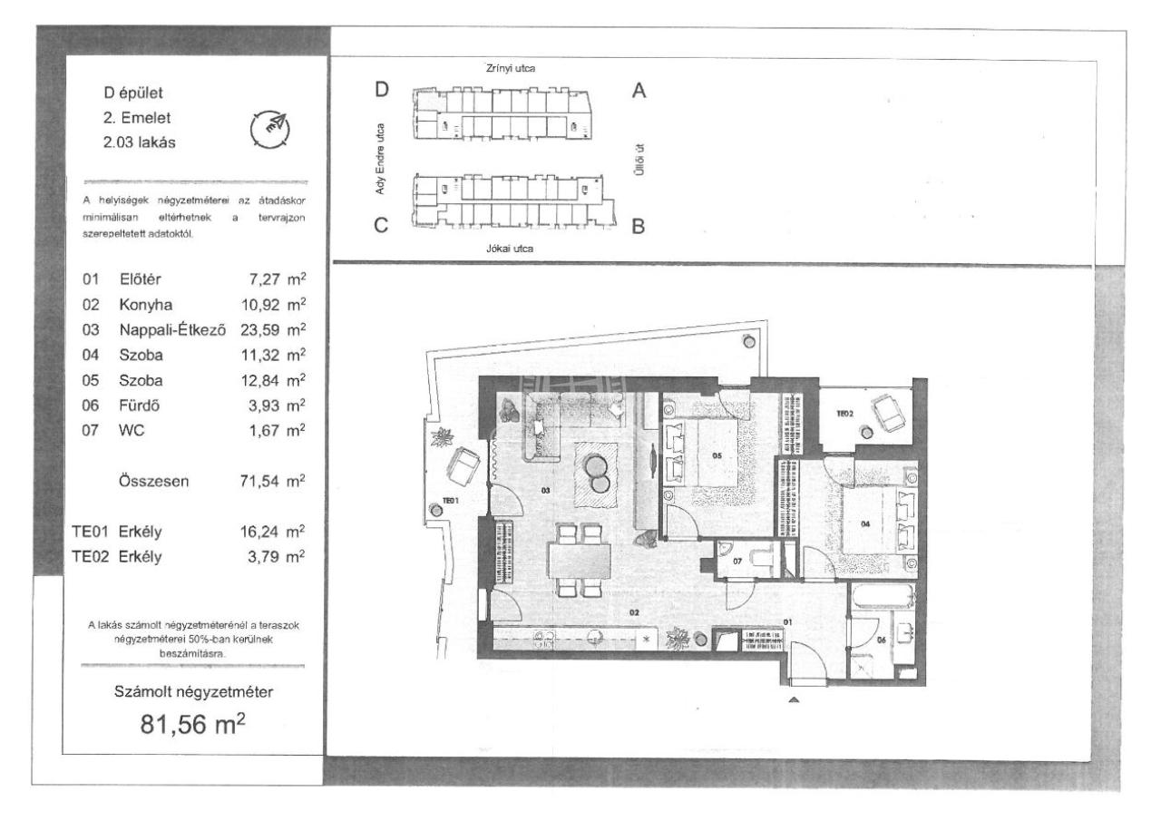
82 m2Площадь 3 Комната
105 990 000 HUF Цена
392767Идентификация
Прочие данные

Уличная вид

Новая Cостояние

Tégla Kонструкция

20 m2 балкон/терраса

Тепловой насос отопление

plným komfortom Kомфортность

Частный гараж парковка

Этаж 2

Есть Лифт

Kiváló Общественный транспорт

Американская кухня

Нет Есть сад

2024 Год строительства

Общие сборы 46 500 HUF

​Modern Elegancia és Parkra Néző Panoráma a XIX. kerületben!

​Eladó a XIX. kerület kedvelt, csendes részén, az Zrínyi utcában egy 2023-as építésű, netto 72 m²-es, 3 szobás, prémium kategóriás tégla lakás. A lakáshoz 2 külön erkély tartozik. Az egyik erkély a nappali, és egy hálószobát körülölelve helyezkedik el, a másik egy különálló, a másik hálószobához tartozó.

Ha nem akarsz felújítással bajlódni, és egy fenntartható, modern otthont keresel, megtaláltad!

​Miért ezt a lakást válaszd?

​Korszerű gépészet: A jövő technológiája! Mennyezeti hűtés-fűtés!
Házközponti őszivattyús rendszer gondoskodik a kellemes hőmérsékletről télen-nyáron. Nincsenek zavaró fűtőtestek, csak tiszta terek és rendkívül alacsony rezsi.

​Óriási Erkély: A 20 m²-es terasz igazi kültéri nappaliként funkcionál, ahonnan közvetlen kilátás nyílik a parkra – tökéletes helyszín a reggeli kávéhoz vagy esti kikapcsolódáshoz.

​Elrendezés: Amerikai konyhás nappali + 2 külön nyíló hálószoba, külön fürdő és WC, ami ideális családoknak vagy Home Office-hoz is.
​Felszereltség: Teljesen gépesített, beépített minőségi konyhabútor és modern műanyag nyílászárók.

​Környék és Életérzés:
​A társasház tiszta, rendezett, a lakóközösség pedig kimondottan kulturált. Bár a környék csendes, a lokáció verhetetlen:
​1-2 perces séta: Buszmegállók, villamos, bankok, iskolák és bevásárlási lehetőségek.
​Zöld környezet, mégis minden karnyújtásnyira a várostól.
​A lakás tehermentes és azonnal költözhető!
​Irányár: [114.000.000] Ft

Extrák: A lakáshoz saját MÉLYGARÁZS BEÁLLÓ (13 NM) és ABLAKOS TÁROLÓ (4,5 NM) is tartozik.
Irányár:
Tárolo:4.300.000 FT
Garázs: 5.900.000 FT
HÍVJON BIZALOMMAL, TEKINTSÜK MEG EGYÜTT!
Gergicsné Veér Annamária

Gergicsné Veér Annamária

Звоните нам с доверием

+36-20-396- Показать

Другие объявления

Aгентств недвижимости
GDN Сеть недвижимости - SZIGET
+36 24 656 320

Перезвоните мне

Похожая недвижимость