Совмещенный дом Продается Budapest XVIII. mикрорайон - Kerékvágás út

Продается Budapest XVIII. kerület Совмещенный дом
167 m2Площадь 4 Комната
159 900 000 HUF Цена
387748Идентификация
Прочие данные

612 m2 Yчасток

С видом на сад вид

Новостройка Cостояние

Tégla Kонструкция

Тепловой насос отопление

plným komfortom Kомфортность

Частный гараж парковка

Dobrý Общественный транспорт

Американская кухня

Есть Есть сад

2026 Год строительства

XVIII. kerület – Almáskert szívében utcafronti ikerházfél eladó!

Almáskert csendes mellékutcájában, a telek utcafronti részén elhelyezkedő, modern, prémium minőségű ikerházfél várja új tulajdonosát.
A széles telket a bal oldalán leválasztott szolgalmi út szolgálja ki (4,5 m × 70 m), így az ingatlan közvetlenül az utcáról és a szolgalmi útról is megközelíthető. A telek belső részén helyezkedik el a középső ikerfél, a legvégén pedig egy különálló, önálló családi ház kap helyet – az elrendezés rendezett, átlátható, a forgalom szervezett.

(Még választhat: az első vagy a középső ikerfél, illetve a különálló ház is rendelkezésre áll!)

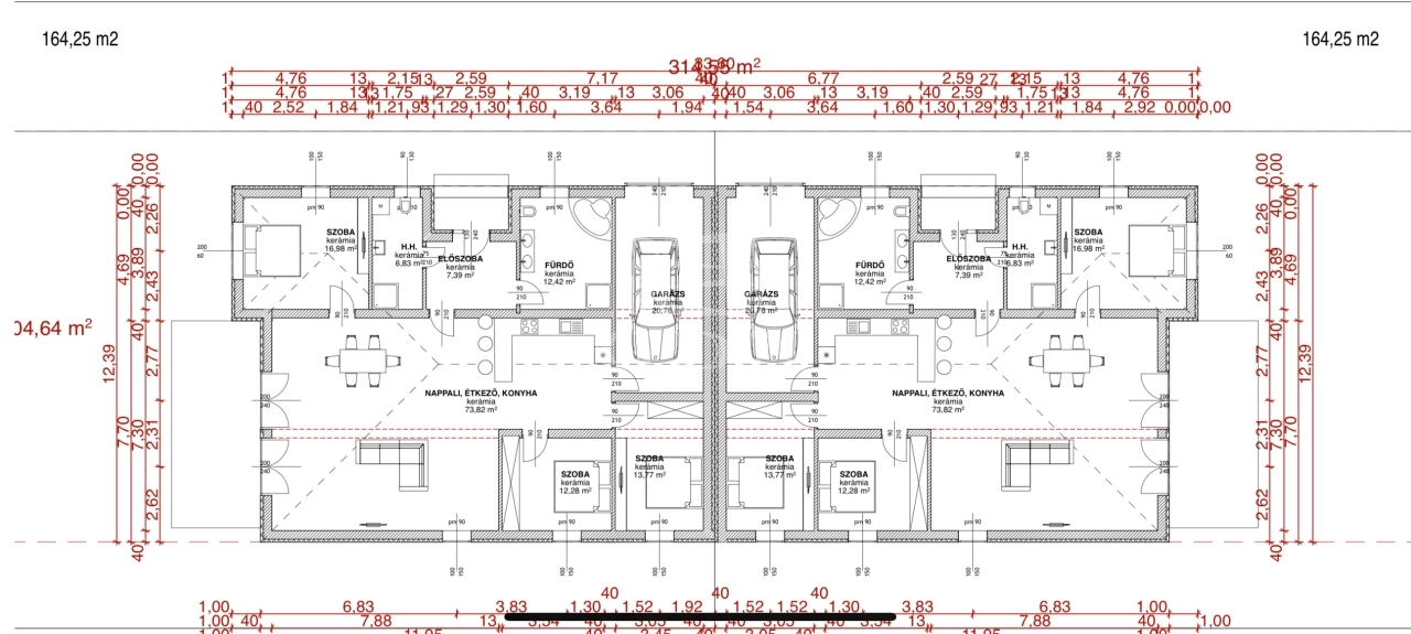
Alapterület: 167 m² (nettó), 210 m² (bruttó)
Szobák száma: 3
Telek mérete: 612 m²

Elrendezés
• Szoba: 15,98 m²
• Szoba: 12,28 m²
• Szoba: 13,77 m²
• Nappali–étkező–konyha: 73,82 m²
• Garázs: 20,76 m²
• Előszoba: 7,39 m²
• Fürdőszoba: 12,42 m²
• Háztartási helyiség: 6,83 m²

Műszaki jellemzők
• 30-as Leier falazat 10 cm grafitos szigeteléssel, lábazat 15 cm XPS
• Belső falak: 10 cm Leier tégla
• Födém: 20 cm kőzetgyapot szigetelés
• Hőszivattyú + padlófűtés az egész házban
• 3 rétegű, energiatakarékos külső nyílászárók
• Választható klíma: 1 db a nappaliba vagy komplett kiállás minden szobába
• Elektromos kapu, napelem-előkészítés
• Kamerarendszer és riasztó beépítve

A vételár tartalmazza
• Melegburkolat: 5.000 Ft/m² (filc alátéttel, szegéllyel)
• Hidegburkolat: 5.000 Ft/m² (fugával, burkolatváltókkal)
• Beltéri ajtó kilinccsel: 80.000 Ft/db
• Kád tartozékaival: 80.000 Ft/db
• Csaptelep: 20.000 Ft/db
• Mosdó: 20.000 Ft/db
• Plusz vízkiállás: 50.000 Ft/db
• Villanykiállás (fejegységenként): 30.000 Ft/db
• Kerti csap szerelve: 100.000 Ft/db

Szaniterek és belső ajtók készültségi foktól függően választhatók. Extra igények és változtatások egyeztetés alapján kérhetők.

Kivitelező

Megbízható, tapasztalt cég, számos, a környéken megtekinthető referenciamunkával. Időpont-egyeztetéssel személyes referencia-bejárás is lehetséges.

Pénzügyek, jog
• 30% önerővel lefoglalható
• Várható átadás: 2026. III. negyedév
• Jogosult minden aktuális támogatásra
• Finanszírozásban segítünk (független hitelszakértő), ügyvédi háttér garantált
• (Projektjog: osztatlan közös, ügyvédi megosztással)

Érdeklődjön még ma! Hívjon a hét bármely napján további információért és megtekintésért.
Gergicsné Veér Annamária

Gergicsné Veér Annamária

Звоните нам с доверием

+36-20-396- Показать

Другие объявления

Aгентств недвижимости
GDN Сеть недвижимости - SZIGET
+36 24 656 320