Частный дом Продается Budapest XXIII. mикрорайон - Soroksár

Продается Budapest XXIII. kerület Частный дом
185 m2Площадь 5 Комната
149 000 000 HUF Цена
382863Идентификация
Прочие данные

217 m2 Yчасток

Уличная вид

Новая Cостояние

Tégla Kонструкция

Газ (циркуляционный) отопление

Dupla komfort Kомфортность

Свое место парковки парковка

Dobrý Общественный транспорт

Американская кухня

Есть Есть сад

2015 Год строительства

Eladó Soroksár frekventált részén önálló családi ház!

Az ingatlan alkalmas üzlet kialakítására vagy két generáció részére is, befektetésnek is kiváló.

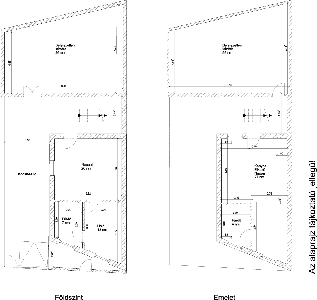
Az ingatlan első épületének beosztása:

Földszint: 46 m2
- nappali-konyha 26 m2
- fürdő 7 m2
- szoba 13 m2

Tetőtér: 31 m2
- nappali-konyha 27 m2
- fürdő 4 m2

Az ingatlan második (hátsó) épülete:
Földszint: 56m2, ahol magánrendelő kialakítása van folyamatban
Tetőtér: 56m2

Felszereltség:
- elektromos kapu
- elektromos redőnyök
- hűtő-fűtő klíma
- műanyag nyílászárók
- minőségi burkolatok

Az udvarban 1 autó beállásra van lehetőség, további autóval közterületen megoldott a parkolás.

Közlekedés kiváló, HÉV és buszmegálló 5 percre, Budapest Közvágóhíd 15 perc. A közelben iskola, óvoda, kormányablak, bankfiók, rendelőintézet. Az IKEA, Auchan bevásárlóközpont 10 perc autóút.

Befektetésnek is kiváló, a környéken 600.000-850.000Ft/hó + rezsi áron vannak hasonló kiadó lakások, ami évente 7.000.000Ft bevételt is jelenthet.

Amivel segítjük az Ön ingatlanvásárlását:
- ingyenes hitelügyintézés,
- jogi háttér,
- földhivatali ügyintézés,
- energetikai tanúsítvány.

Irodánk 30 éves szakmai tapasztalattal áll ügyfelei rendelkezésére!
Várom szíves megkeresését.
Gergicsné B. Enikő

Gergicsné B. Enikő

Звоните нам с доверием

+36-30-941- Показать

Другие объявления

Aгентств недвижимости
GDN Сеть недвижимости - SZIGET
+36 24 656 320

Перезвоните мне