Квартира (панель) Продается Budapest XXII. mикрорайон - XXII. kerület Terv utca

Продается Budapest XXII. kerület Квартира (панель)
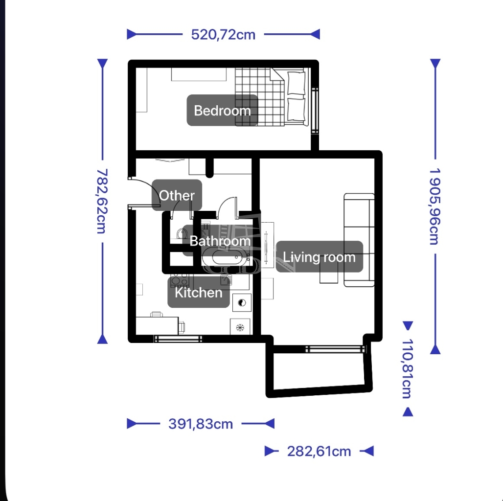
50 m2Площадь 2 Комната
71 900 000 HUF Цена
393091Идентификация
Прочие данные

С видом на сад вид

Отремонтированная Cостояние

Panel Kонструкция

3 m2 балкон/терраса

Система централизованного теплоснабжения отопление

plným komfortom Kомфортность

На улице, в общественном месте парковка

Этаж 1

Нет Лифт

Dobrý Общественный транспорт

No Американская кухня

Нет Есть сад

1981 Год строительства

Общие сборы 16 500 HUF

Van egy hely Budafokon, ahol a reggeli kávé az erkélyen kezdődik… és a nyugalom nem luxus, hanem alapérzés.

Budapest XXII. kerületének közkedvelt részén, a Rózsakerti lakótelepen kínálok megvételre egy 50 m²-es, első emeleti, igényesen felújított, 2 szobás lakást – egy olyan otthont, ahová valóban csak költözni kell.

A tér itt nemcsak négyzetméter, hanem élmény. A közel 18 m²-es nappali világos és élhető, a külön nyíló hálószoba meghitt pihenőzóna, a 3 m²-es erkély pedig a saját kis szabadtéri menedéked, egy pohár borral, egy jó könyvvel vagy csak egy csendes pillanattal.

Az ingatlan műszaki tartalma kiváló: felújított víz- és elektromos hálózat, új burkolatok, cserélt beltéri ajtók, biztonsági bejárati ajtó, valamint split klíma gondoskodik a modern komfortérzetről. A beépített előszobabútor praktikus és esztétikus megoldás, a lakás mellett található saját, zárható tároló pedig további kényelmet jelent.

A környezet itt valódi egyensúlyt teremt: madárcsicsergős nyugalom és városi kényelem kéz a kézben. Pár perc sétával elérhetők iskolák, óvodák, bevásárlási lehetőségek, egészségügyi szolgáltatások, a Campona pedig néhány perc autóval. Parkosított terek, játszóterek, nyugodt lakóközösség és ingyenes utcai parkolás teszik teljessé az összképet.

Ez a lakás ideális első otthonnak, fiatal pároknak, tudatos befektetőknek vagy mindazoknak, akik nem kompromisszumot, hanem jó döntést szeretnének hozni.
Ha olyan otthont keres, amely egyszerre fiatalos, felújított és értékálló, örömmel mutatom meg személyesen is.
Apolzan Magdalena

Apolzan Magdalena

Звоните нам с доверием

+36-70-908- Показать

Другие объявления

Aгентств недвижимости
GDN Сеть недвижимости - SZIGET
+36 24 656 320