Частный дом Продается Budapest XVIII. mикрорайон - Poprád utca

Продается Budapest XVIII. kerület Частный дом
230 m2Площадь 3 Комната
119 800 000 HUF Цена
393578Идентификация
Прочие данные

433 m2 Yчасток

С видом на сад вид

В хорошем состоянии Cостояние

Tégla Kонструкция

5 m2 балкон/терраса

Газ (циркуляционный) отопление

plným komfortom Kомфортность

Частный гараж парковка

Dobrý Общественный транспорт

No Американская кухня

Есть Есть сад

1995 Год строительства

Délkelet Расположение

Eladó háromszintes önálló családi ház 18.kerületben.

Budapest 18.kerület Ferihegy városrészben kínálunk megvételre egy nettó 230 nm-es, háromszintes,téglából épült, önálló családi házat
433 nm-es telken.
A telken található még, egy különálló garázs.
A nyílászárók háromrétegű üvegezésű a jobb hangszigetelés érdekében.
A fűtést gáz cirkó biztosítja radiátoros hőleadással.

Az ingatlan beosztása-
földszint:
- előszoba 7nm,
- nappali 23,1nm,
- konyha 7,5nm,
- étkező 15,9nm,
- kamra 2,3nm,
- fürdőszoba 5,2nm,
- WC 2,2nm,
---------------------------
nettó: 63,2nm

Emelet:
- lépcsőház 5,4nm,
- hall 14,1nm,
- fürdőszoba+WC 3,6nm,
- szoba 23,1nm,
- szoba 11,4nm,
- szoba 11,4nm,
- terasz 5nm,
-----------------------------
nettó:74nm

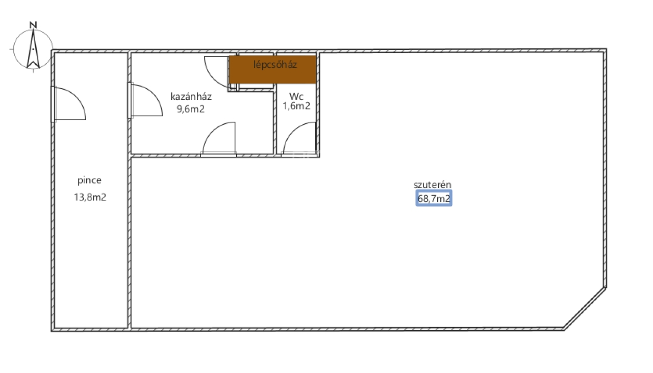
Szuterén:
- kazánház 9,6nm,
- tároló 13,8nm,
- WC,mosdó 1,6nm,
- "dühöngő"szabadidőszoba 68,7nm,
------------------------------
nettó: 93,7nm

Vonat, busz megálló a közelben. Szemere István téri játszótér sétatávolságra található.

Amivel segítjük az Ön ingatlanvásárlását:
- ingyenes hitelügyintézés,
- jogi háttér,
- földhivatali ügyintézés,
- energetikai tanúsítvány,
- a vevő számára az ingatlanközvetítés ingyenes.

Irodánk 30 éves szakmai tapasztalattal áll ügyfelei rendelkezésére!

Várom szíves megkeresését!
Gergicsné Veér Annamária

Gergicsné Veér Annamária

Звоните нам с доверием

+36-20-396- Показать

Другие объявления

Aгентств недвижимости
GDN Сеть недвижимости - SZIGET
+36 24 656 320