土地 出卖 Demjén - Szabadság utca

出卖 Demjén 土地
9 141 m2面积 0 房间
170 000 000 HUF 价格
365047识别码
更多信息
DEMJÉN – ENGEDÉLYEZETT FEJLESZTÉSI PROJEKT ELADÓ (AZONNAL INDÍTHATÓ)

Közvetlenül a demjéni Barlangfürdő mellett kínálok megvételre egy két helyrajzi számon nyilvántartott, összesen 9.141 m²-es belterületi fejlesztési területet, jogerős építési engedéllyel.

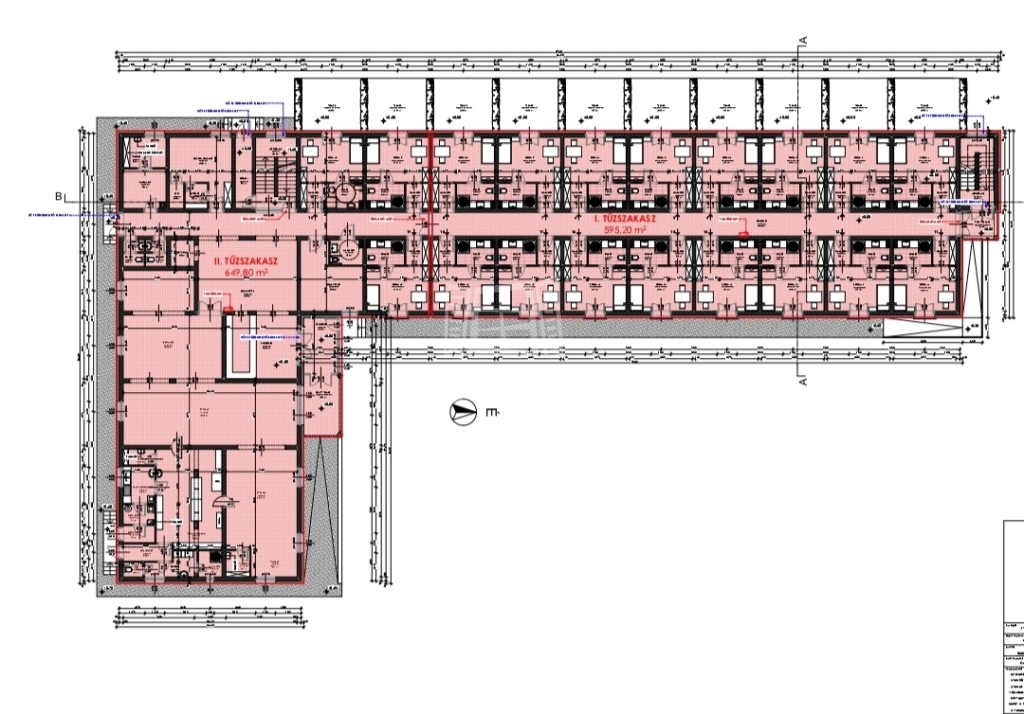
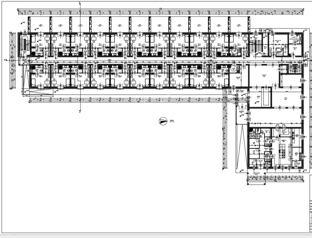
A projekt 2 db idősek otthona kivitelezésére rendelkezik engedéllyel:
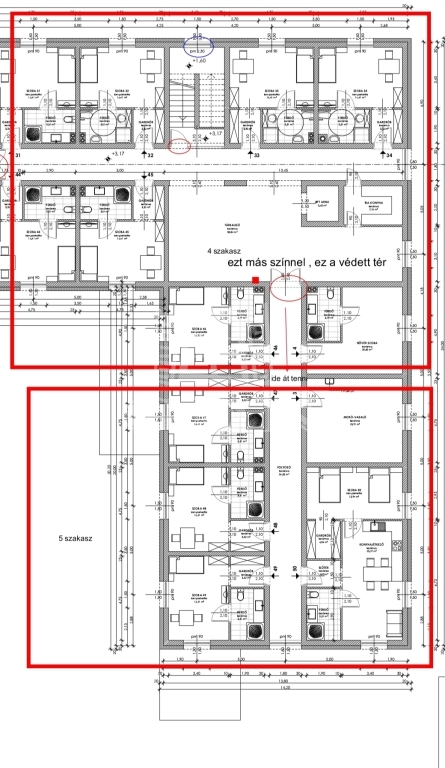
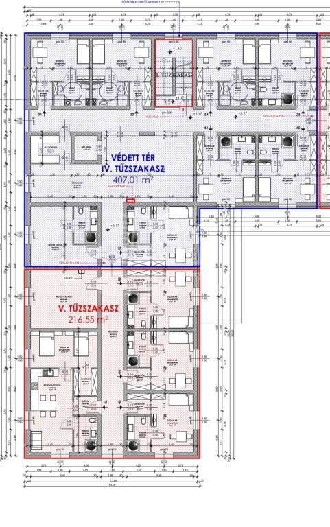
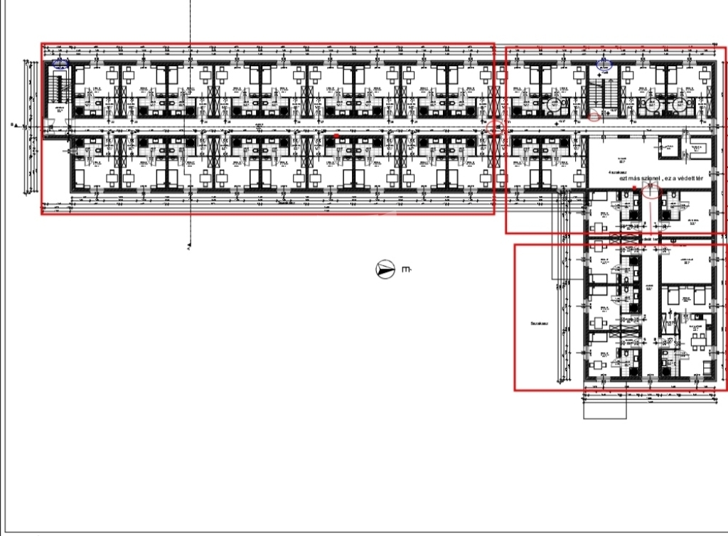
– 47 szobás intézmény
– 50 szobás intézmény

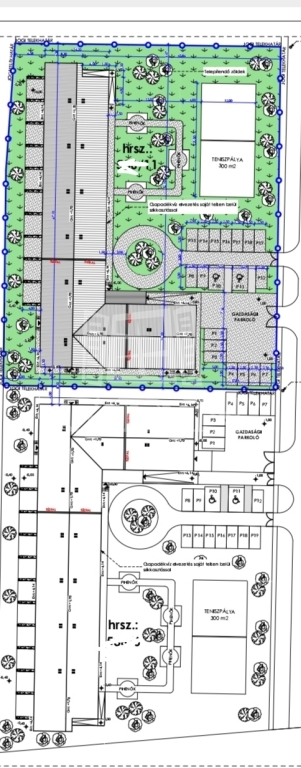
TELEKADATOK:
– 4.672 m²
– 4.469 m²
– Összesen: 9.141 m²

ÖVEZETI BESOROLÁS:
Lke-2 – kertvárosias lakóterület

BEÉPÍTÉSI PARAMÉTEREK (helyi építési szabályzat szerint):
– Beépítési mód: szabadon álló
– Maximális beépíthetőség: 30%
– Maximális szintterületi mutató (SZTM): 0,8
– Maximális építménymagasság: 7,5 m

BEÉPÍTHETŐSÉG SZÁMÍTÁSA:

Telek 1 (4.672 m²):
– Max. beépíthető alapterület: 4.672 × 0,30 = 1.401,6 m²
– Max. szintterület: 4.672 × 0,8 = 3.737,6 m²

Telek 2 (4.469 m²):
– Max. beépíthető alapterület: 4.469 × 0,30 = 1.340,7 m²
– Max. szintterület: 4.469 × 0,8 = 3.575,2 m²

Összesen:
– Max. beépíthető alapterület: ~2.742 m²
– Max. szintterület: ~7.313 m²

TERVEZETT ÉPÜLETEK:
– 1.343 m² és 1.248 m² alapterület
– ~7,2 m építménymagasság
– összesen közel 100 szobás fejlesztés

A jelenlegi engedélyezett terv közel maximális beépítési lehetőséget használ ki.

PROJEKT ELŐNYEI:
– jogerős építési engedély (idő- és költségmegtakarítás)
– azonnal indítható kivitelezés
– gyógyturisztikai lokáció (Demjéni Barlangfürdő közvetlen közelében)
– alternatív hasznosítási lehetőség (senior living / hotel / apartman)

Irányár: 170 millió Ft (csak egyben)

Budapesti ingatlan vagy gépjármű beszámítás lehetséges.

Befektetőknek, kivitelezőknek és üzemeltetőknek ajánlott.

Részletes dokumentáció (tervek, engedélyek) kérésre elérhető.
Kémeri-Szekernyés Tímea

Kémeri-Szekernyés Tímea

随时给我们打电话

+36-30-248- 给我看

更多的广告

房产代理处
GDN 房产联盟 - SZIGET
+36 24 656 320

请给我回电话