商业用 - 店铺 出租 Hódmezővásárhely - Andrássy út

出租 Hódmezővásárhely 商业用 - 店铺
156 m2面积 0 房间
550 000 HUF /月 价格
334799识别码
更多信息

街道 风景

状态好 状态

Tégla 架构

燃气(循环式) 暖气

在接到 停车

Kiváló 公共交通

1974 修建年

KIADÓ ÜZLET A BELVÁROSBAN

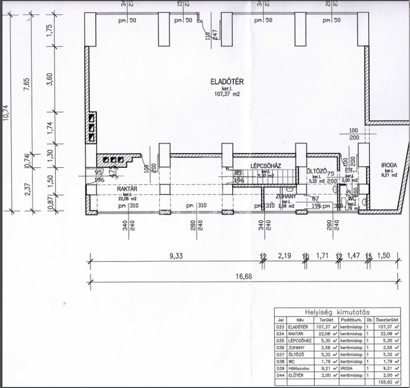
Hódmezővásárhely főutcáján, az Andrássy úton kiadó ez az utcafronti bejáratú, 156 m2 földszinti üzlethelyiség, ami 68 m2 pincerésszel egészül még ki.
Az üzlet kiváló elhelyezkedésű, gyalogosan és tömegközlekedéssel is jól megközelíthető ( előtte van a tramtrain megállója).
Az ingatlan fűtése cirkó rendszerű radiátorokkal.

A havi bérleti díj 550.000 Ft/hó + rezsi, közös költség és építmény adó.

Minimum bérlési idő 3 év, a bérléshez a bérleti díjon felül 3 havi kaució szükséges.

NÉZZE MEG AJÁNLATUNKAT SZEMÉLYESEN IS!
Gergicsné Veér Annamária

Gergicsné Veér Annamária

随时给我们打电话

+36-20-396- 给我看

更多的广告

房产代理处
GDN 房产联盟 - SZIGET
+36 24 656 320

请给我回电话