双面别墅 出卖 Taksony - Újépítésű otthon Taksonyban

出卖 Taksony 双面别墅
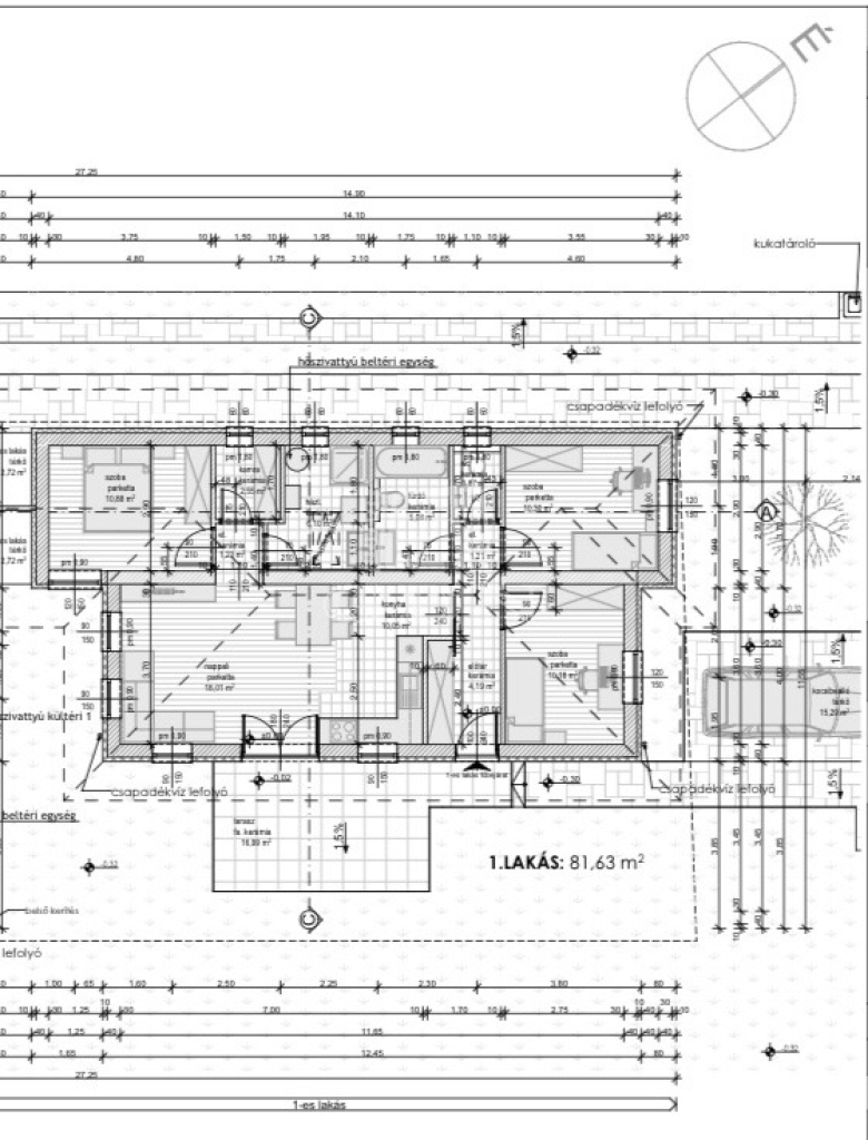
82 m2面积 1 + 3 房间
95 000 000 HUF 价格
395325识别码
更多信息

640 m2 地皮

园子 风景

新建 状态

Tégla 架构

20 m2 阳台

热泵 暖气

Dupla komfort 舒适感

自己的泊车位 停车

Bun 公共交通

美国式厨房

有 有园子

2026 修建年

Eladó új építésű ikerház Taksonyban – modern otthon nyugodt környezetben

Taksony csendes, mégis kiválóan megközelíthető részén kínálunk megvételre egy újonnan épülő ikerház mindkét lakását. A környéket fiatalos hangulat és új építésű családi házak jellemzik, ideális választás mindazok számára, akik nyugodt, rendezett környezetben képzelik el mindennapjaikat.

Az ingatlan korszerű műszaki tartalommal készül:

tégla építésű falazat
15 cm-es hőszigetelés
esztétikus cserép tető
3 rétegű műanyag nyílászárók
antracit színű alumínium redőnyök
energiatakarékos, modern hőszivattyús fűtési rendszer

A belső elrendezés praktikus és jól átgondolt:

előtérből nyíló amerikai konyhás nappali
külön hálószoba
elszeparált szülői háló
fürdőszoba WC-vel
vendég WC
kamra
háztartási helyiség

Mindkét lakás kényelmes méretű helyiségekkel és élhető alaprajzzal rendelkezik, amely ideális életteret biztosít családok számára.

Várható befejezés: 2026. október vége
A lakások már most foglalhatók, és hitelügyintézésre is alkalmasak.

Ez az ingatlan kiváló lehetőség azoknak, akik új építésű, energiatakarékos otthont keresnek barátságos környezetben.

Amennyiben hitelfelvételre van szükség, bankfüggetlen hitelcentrumunk díjmentes áll ügyfeleink rendelkezésére!

Érdeklődés esetén keressen bizalommal! megtekintés a hét bármely napján.
Kémeri-Szekernyés Tímea

Kémeri-Szekernyés Tímea

随时给我们打电话

+36-30-248- 给我看

更多的广告

房产代理处
GDN 房产联盟 - SZIGET
+36 24 656 320

请给我回电话