Flat (brick) For sale Budapest VII. district - Grand Royal Szálloda mellett

For sale Budapest VII. kerület Flat (brick)
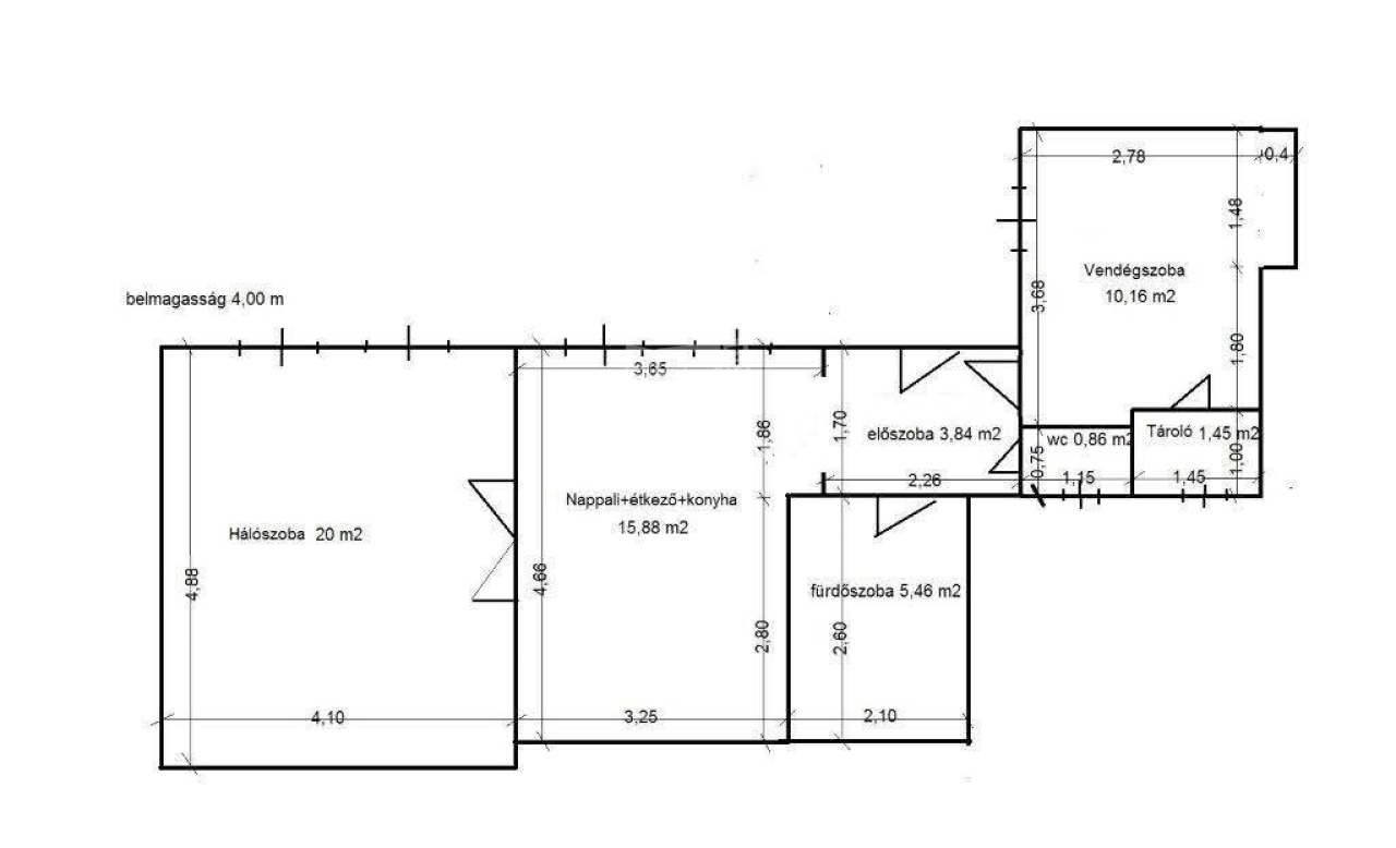
57 m2Space 2 + 1 Rooms
88 900 000 HUF Price
389687ID number
Other data

Courtyard View

In good condition Condition

Brick Structure

Gas (convector) Heating

Full comfort Comfort

At community areas Parking

Floor 1

Exist Elevator

Excellent Public transport

No American kitchen

No exist Access to the garden

1890 Year of construction

Common cost 12 000 HUF

Fedezze fel ezt a belvárosi 57 m²-es, téglaépítésű lakást Budapest szívében, a Király utca és Erzsébet krt. kereszteződésében, a 4-6 villamos Király utcai megállójánál, a volt Grand Royal Szálloda mellett, a körút egyik legszebb szakaszán az Andrássy út és az Oktogon közvetlen szomszédságában.
A lakás liftes ház 1. emeletén helyezkedik el, udvari kilátással, így a nyüzsgő városi élet zajától elszigetelt.
A helyiségek elosztása 2+1 szoba, ami ideális lehet akár családoknak, akár dolgozó fiataloknak. A körfolyosó utolsó lakása, melyet 2016-ban újítottak fel teljes körűen.
Belmagassága 4 m, igény esetén galériázható.
Gázkonvektoros fűtés biztosítja a kellemes hőmérsékletet a hidegebb napokon és egy gáz átfolyós vízmelegítő állítja elő a melegvizet.
Alacsony fenntartási rezsi költségei vannak, éves átalányban 16.000 Ft, + 12.000 Ft a közösköltség havonta.
A társasház rendezett, belső udvara különösen szép és egy saját 8 nm tároló is tartozik a lakáshoz az épület alagsorában.
Kiváló választás lehet azok számára, akik a város központi részén szeretnének élni mindennapi kényelemmel.
Gergicsné B. Enikő

Gergicsné B. Enikő
Advertiser

Call me with confidence

+36-30-941-Show!

Other listings

Real Estate Agency
GDN Real Estate Network - SZIGET
+36 24 656 320