Casa Familiala Vânzare Gödöllő - Dessewffy Arisztid utca

Vânzare Gödöllő Casa Familiala
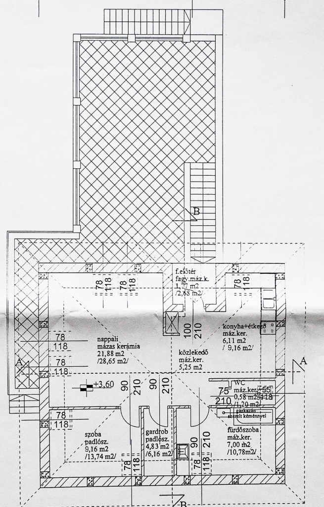
148 m2Suprafaţa 5 + 1 Camere
134 000 000 HUF Preţ
394300Identificare
Mai multe detalii

805 m2 Teren

Vedere spre grădină Vedere

Renovat Stare

Caramida Structură

56 m2 Balcon/Terasă

Gaz Încălzire

Dupla komfort Confort

Garaj Propriu Parcare

Bun Transport public

Nu Bucătarie deschisă

Existent Acces la grădină

1980 An construcție

Sud Est Orientare

KÉT GENERÁCIÓ SZÁMÁRA IS TÖKÉLETES, TÁGAS OTTHON GÖDÖLLŐ CSENDES RÉSZÉN, IGÉNYES KIALAKÍTÁSSAL ÉS KIVÁLÓ TÁJOLÁSSAL

Megvételre kínálok Gödöllő Alvég városrészben, 805 nm-es telken, délkeleti fekvésű, nettó 148 nm-es, bruttó 229 nm-es, felújított, két külön bejáratú lakásból álló családi házat.

A főépület szuterén (48nm) és az alsó lakás (75 nm), 1980-as években épült, beton alapra 30-as tégla falazattal. 2009-ben ráépült beton födémmel és új tetővel egy külön bejáratú 56 nm-es lakás, illetve mellé épült egy 35 nm-es két állásos garázs elektromos garázskapuval, ami fölött 56 nm-es terasz került kialakításra. Ebben az időben kapott az épület körbe 7 cm dryvit szigetelést és új fa thermo nyílászárókat is.

Az ingatlan 2025-ben részben felújításra került, alsó szinten megújult a gépészet (víz, villany, gáz, csatorna, fűtés), kicserélésre kerültek a hideg, illetve melegburkolatok, megújult a fürdőszoba, a konyha pedig teljesen új bútort kapott gépesítéssel.
Kicserélték a teraszburkolatot a felső szint pedig kapott egy tisztasági festést. Két ingatlan teljesen külön mérőórákkal fűtésrendszerrel rendelkezik.

A kétlakásos struktúra nagyszerű lehetőséget teremt azoknak, akik szeretnék a családot egy helyen tudni, de fontos számukra a szeparált élettér; emellett azoknak is vonzó, akik kiadásban gondolkodnak, hiszen teljesen független mérőkkel és külön bejáratokkal rendelkezik.

INFRASTRUKTÚRA

A környék kényelmes mindennapokat biztosít: néhány perces sétával elérhető a buszmegálló, a vasút és a HÉV gyalogosan könnyen megközelíthető. A közelben bevásárlási lehetőségek, óvoda, iskola, egészségügyi szolgáltatások és számos további városi kényelem adott, miközben a környék csendes, rendezett és barátságos lakókörnyezetet kínál.

INGYENES hitel tanácsadás! CSOK+, Otthon Start Lakáshitel Ügy intézés!
BANKFÜGGETLEN hitelcentrumunk minden elérhető bank és hitelintézet ajánlatát versenyezteti az Ön kedvéért, ráadásul DÍJMENTESEN.
Önnek nincs más dolga, mint elbeszélgetni munkatársunkkal, aki a hallott információk alapján versenyre hívja a bankokat, hogy Ön hosszú távon is a legjobb konstrukciót kaphassa. A legjobb ajánlatokból végül Ön választhatja ki a nyertest.
Munkatársaink sokéves szakmai tapasztalattal várják Önt, előre egyeztetve akár a normál munkaidő után is.

Amennyiben hirdetésem felkeltette érdeklődését, várom hívását, akár hétvégén is! V.I.
Kémeri-Szekernyés Tímea

Kémeri-Szekernyés Tímea
Agent de publicitate

Contactează-mă!

+36-30-248-Arată

Mai multe anunțuri

Agenție Imobiliară
GDN Rețea de agenții imobiliare - SZIGET
+36 24 656 320