Duplex Vânzare Gödöllő - Kertváros

Vânzare Gödöllő Duplex
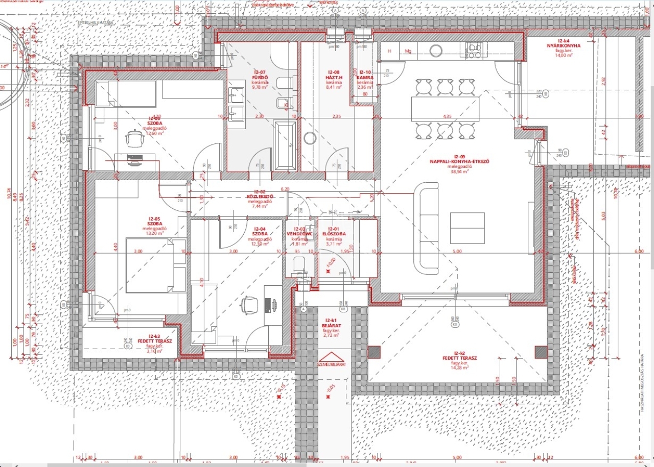
145 m2Suprafaţa 4 Camere
155 000 000 HUF Preţ
393826Identificare
Mai multe detalii

550 m2 Teren

Vedere spre grădină Vedere

Proprietate nouă Stare

Caramida Structură

17 m2 Balcon/Terasă

Pompă de căldură Încălzire

Confort 1 Confort

Parcare proprie Parcare

Excelent Transport public

Bucătarie deschisă

Existent Acces la grădină

2025 An construcție

Sud Vest Orientare

Eladó ikerházfél Gödöllő kedvelt kertvárosi részén!

Gödöllő egyik legkeresettebb, csendes, nyugodt környékén kínálunk megvételre egy modern, nappali + 3 szobás ikerházfelet, amelyet megbízható, referenciákkal rendelkező kivitelező épít. A ház kiváló választás családoknak, akik szeretnének jó elhelyezkedésű, új építésű otthonba költözni.

Műszaki jellemzők:

30 cm vastag PTH tégla falazat, 12 cm grafitos hőszigeteléssel

10 cm vastag válaszfalak, glettelve és fehérre festve

Lábazat: zsalukőből, szigetelve és vakolva

5 légkamrás, 3 rétegű üvegezésű műanyag nyílászárók középszürke színben

Monolit vasbeton födém

Antracit színű cserépfedés, középszürke ereszcsatorna

Atlantic Loria hőszivattyús rendszer beépített melegvíz-tárolóval

Padlófűtés minden helyiségben, fürdőszobában törölközőszárítós radiátor

Riasztó- és klíma előkészítés

Az ár tartalmazza:

Beltéri ajtók (60.000 Ft/db)

Hideg- és melegburkolatok (5.000 Ft/m²)

Teraszburkolat (6.500 Ft/m²)

Mosdók (20.000 Ft/db)

Csaptelepek (15.000 Ft/db)

Beépített Geberit WC-k (20.000 Ft/db)

Burkolatok és szaniterek szabadon választhatók a vevő igényei szerint!

Helyiségek elosztása:

Előszoba

Nappali-konyha-étkező

Kamra

3 különálló szoba

Közlekedő

Tágas fürdőszoba

Vendégmosdó

Háztartási helyiség

17 m² fedett terasz

14 m²-es nyári konyha

Telek és parkolás:

Saját, szeparált mintegy 550 m²-es telek

Kocsibeálló kialakítva

Környék és elhelyezkedés:

Kiváló környék, minden fontos hely (bolt, iskola, tömegközlekedés) 5 perces sétán belül elérhető. Ideális választás azoknak, akik nyugodt, kertvárosi környezetben keresnek otthont, de szeretnének közel maradni a városi infrastruktúrához.

Várható kulcsrakész átadás: 2026. június

Kérem hívjon bizalommal további információkért, megtekintésért.

Természetesen hitelt, támogatást igénylő vevőknek is állunk szíves rendelkezésére: szakértőink segítenek megtalálni a személyre szabott legjobb finanszírozási formát.



ID:384886
Apolzan Magdalena

Apolzan Magdalena
Agent de publicitate

Contactează-mă!

+36-70-908-Arată

Mai multe anunțuri

Agenție Imobiliară
GDN Rețea de agenții imobiliare - SZIGET
+36 24 656 320