Квартира (кирпичная) Продается Budapest VIII. mикрорайон - Mátyás tér

Продается Budapest VIII. kerület Квартира (кирпичная)
90 m2Площадь 2 + 1 Комната
114 900 000 HUF Цена
390308Идентификация
Прочие данные

Уличная вид

В хорошем состоянии Cостояние

Tégla Kонструкция

Газ (конвектор) отопление

plným komfortom Kомфортность

На улице, в общественном месте парковка

Этаж 2

Есть Лифт

Dobrý Общественный транспорт

No Американская кухня

Нет Есть сад

1920 Год строительства

Északnyugat Расположение

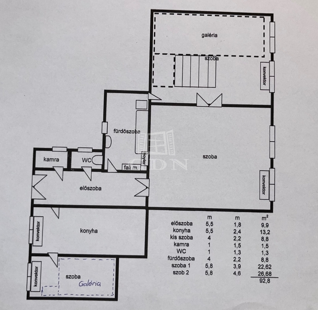
Eladásra kínálunk a Mátyás téren, egy 90 m²-es (valóságban 93 m²-es), utcai és udvari nézetű, jó állapotú, világos lakást. Az ingatlan a 2. emeleten található, liftes társasházban, amelynek külső homlokzata igényesen karbantartott.

A lakás 2+1 szobás, külön konyhával, valamint nagy belmagassággal rendelkezik. Az otthon különlegessége a dupla galéria, amely kiválóan növeli a hasznos alapterületet, így ideális lehet akár dolgozósarok, hálórész vagy tároló kialakítására. A műanyag nyílászárók korszerűek, a fűtést gázkonvektorok biztosítják.

A környék folyamatosan fejlődik: közelben található iskola, óvoda, játszótér, boltok, kávézók, gyógyszertár, minden fontos szolgáltatás könnyen elérhető.
A közlekedés szintén kiváló, a metrómegálló pár perc sétára található.

Ez az ingatlan ideális választás mindazoknak, akik tágas, jó elosztású lakást keresnek egy értékálló, megújuló városrészben.

Jöjjön el, nézze meg, és tegyen ajánlatot!

INGYENES hitel tanácsadás!
BANKFÜGGETLEN hitelcentrumunk minden elérhető bank és hitelintézet ajánlatát versenyezteti az Ön kedvéért, ráadásul DÍJMENTESEN.

ID:386369
Gergicsné B. Enikő

Gergicsné B. Enikő

Звоните нам с доверием

+36-30-941- Показать

Другие объявления

Aгентств недвижимости
GDN Сеть недвижимости - SZIGET
+36 24 656 320